Büros
ID B0399Provisionsfrei
Büroimmobilie - Berlin, Mitte - B0399
Mitte, 10117, Berlin, Berlin
Kontaktieren Sie uns für den Preis
- Fläche527 - 3.226 m²
- VerfügbarkeitAuf Anfrage
- Objekt
- Ausstattung
- Lage und Verkehrsanbindung
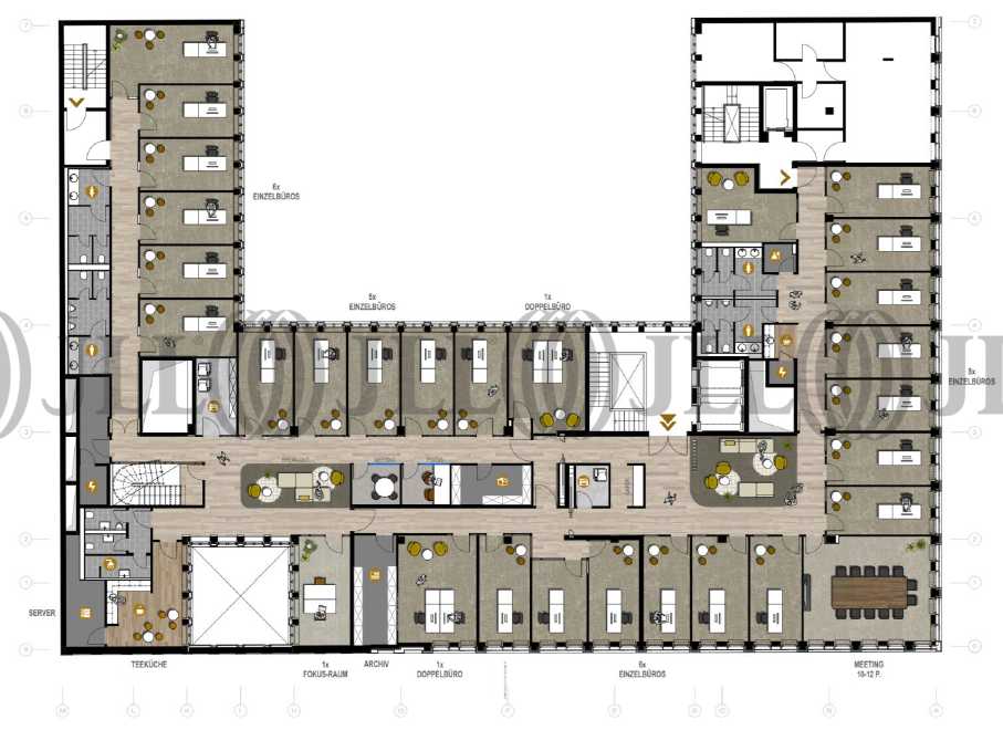
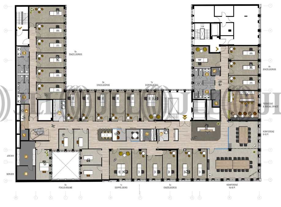
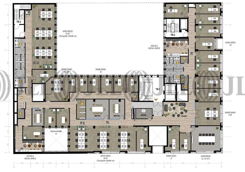
- Grundrisse
- Exposé herunterladen
- Ihr Kontakt
- Anfrage senden
Zertifizierungen
Energieausweis
Für diese Liegenschaft liegt ein Bedarfsausweis vom 2006-10-19 vom Eigentümer/Vermieter vor. Die wesentlichen Energieträger der Liegenschaft sind KWK,Strom. Endenergiebedarf: 165.10000 kWh/(m²*a).Verfügbare Fläche
Lage und Verkehrsanbindung
Das Gebäude befindet sich am wohl prominentesten Platz Deutschlands und ist eines der wenigen, in denen noch Flächen zur Fremdanmietung angeboten werden. Von diesem Gebäude aus genießt man einen unverbaubaren Blick auf das Brandenburger Tor. Im Umfeld befinden sich die Vertretung des Deutschen Bundestages, Repräsentanzen der DZ Bank und Dresdner Bank, die Akademie der Künste, die Europäische Union, die Amerikanische, Französische, Englische, Russische sowie Ungarische Botschaft. Dienstleister des täglichen Bedarfs befinden sich in der Nähe.
- Flughafen, Berlin Brandenburg, Fahrzeit: 25 min
- Bundesautobahn, A 100, Fahrzeit: 20 min
- Bus, Bushaltestelle S+U Brandenburger Tor Buslinien TXL, 100, Gehzeit: 4 min
Ihr Kontakt

Gerald Dietzold
Ihr Kontakt
Marktinformationen
Mietmarkt
Mitte, Berlin
siehe 167 passende MietobjekteErfahren Sie mehr
* Durchschnittspreis auf Grundlage historischer Transaktionen.








