Büros
ID B0395Provisionsfrei
Aktualisiert
Büroimmobilie - Berlin, Mitte - B0395
Mitte, 10117, Berlin, Berlin
19 € / m²
- Fläche160 - 364 m²
- VerfügbarkeitSofort
- Objekt
- Ausstattung
- Lage und Verkehrsanbindung
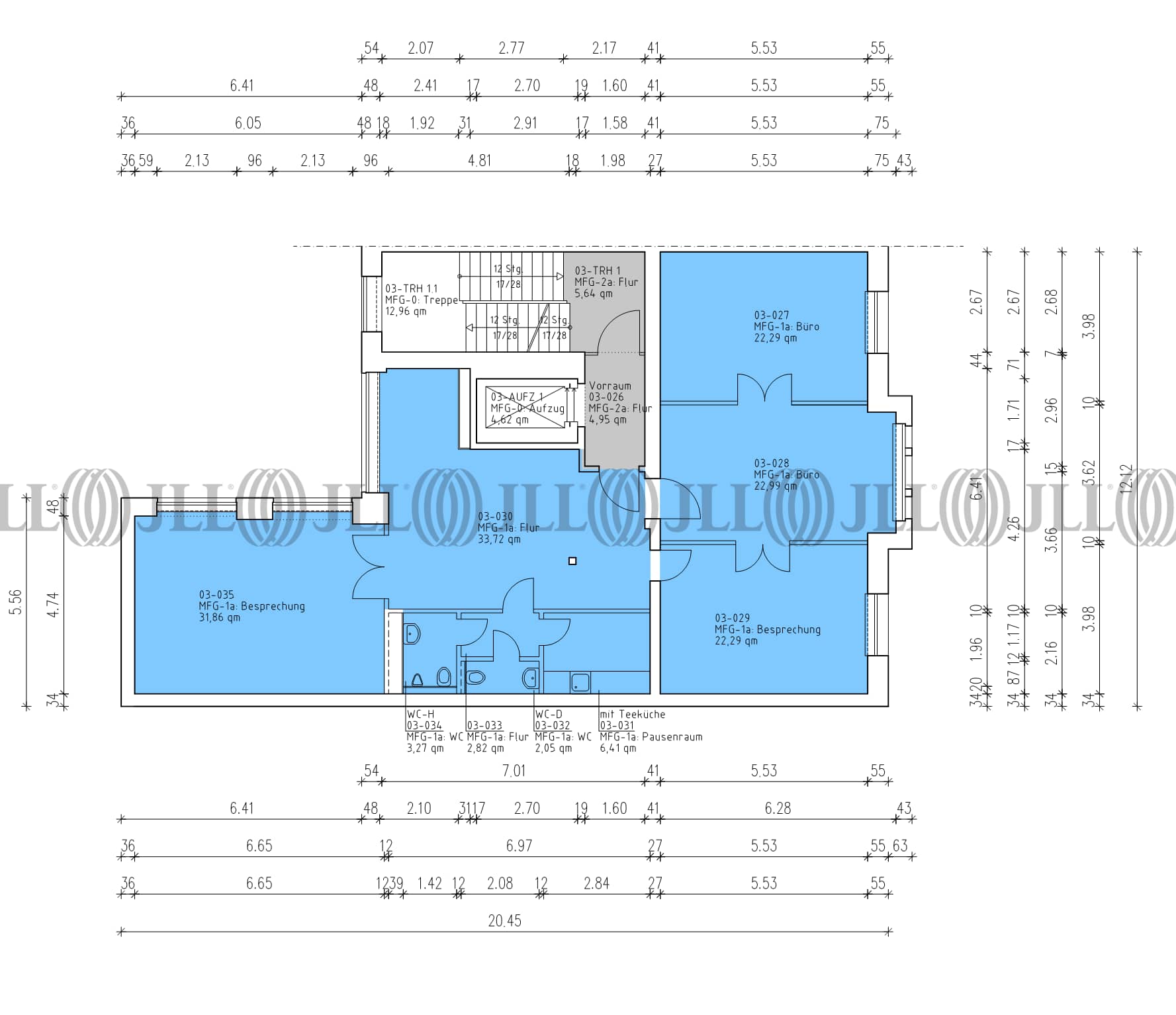
- Grundrisse
- Exposé herunterladen
- Ihr Kontakt
- Anfrage senden
Zertifizierungen
Energieausweis
Für diese Liegenschaft liegt ein Verbrauchsausweis vom 2014-04-28 vom Eigentümer/Vermieter vor. Der wesentliche Energieträger der Liegenschaft ist Fernwärme. Der Endenergieverbrauch Strom beträgt 11.90 kWh/(m²*a). Der Endenergieverbrauch Wärme beträgt 117.00 kWh/(m²*a).Verfügbare Fläche
Lage und Verkehrsanbindung
Bei der Liegenschaft handelt es sich um ein Neubau- und ein Altbauobjekt im Bezirk Berlin-Mitte in unmittelbarer Nähe der Friedrichstraße. Das Gebäude zeichnet sich durch seine zentrale Lage inmitten des Stadtzentrums sowie eine sehr gute Infrastruktur aus. Auch für den Individualverkehr ist das Objekt über die Leipziger Straße, Unter den Linden und die Friedrichstraße zu erreichen.
- Flughafen, Berlin Brandenburg, Fahrzeit: 30 min
- Bundesautobahn, A 100, Fahrzeit: 15 min
- Bus, Französische Straße; Linie 147, Gehzeit: 2 min
- U-Bahn, Französische Straße; Linie U6, Gehzeit: 2 min
- Hauptbahnhof, Berlin, Fahrzeit: 7 min
Ihr Kontakt

Alexandra Teich
Ihr Kontakt
Marktinformationen
Mietmarkt
Mitte, Berlin
Gew. Ø-Miete
19 € / m²
siehe 153 passende MietobjekteErfahren Sie mehr* Durchschnittspreis auf Grundlage historischer Transaktionen.





