Büros
ID B0387Provisionsfrei
Aktualisiert
Büroimmobilie - Berlin, Mitte - B0387
Mitte, 10117, Berlin, Berlin
33 € / m²
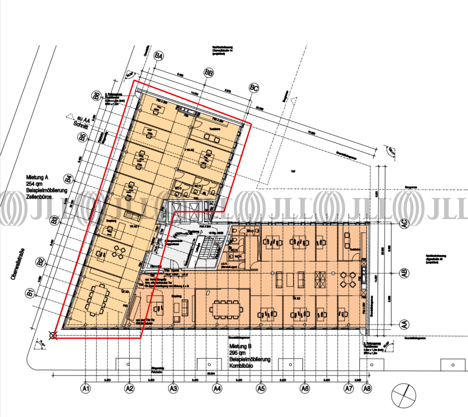
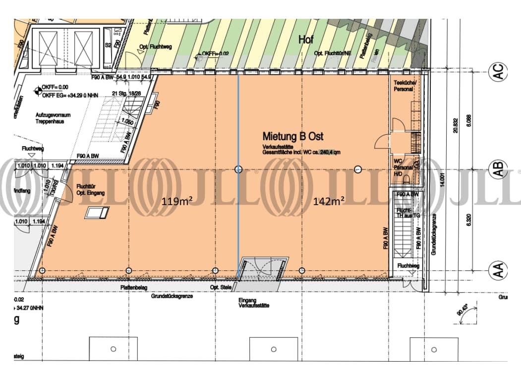
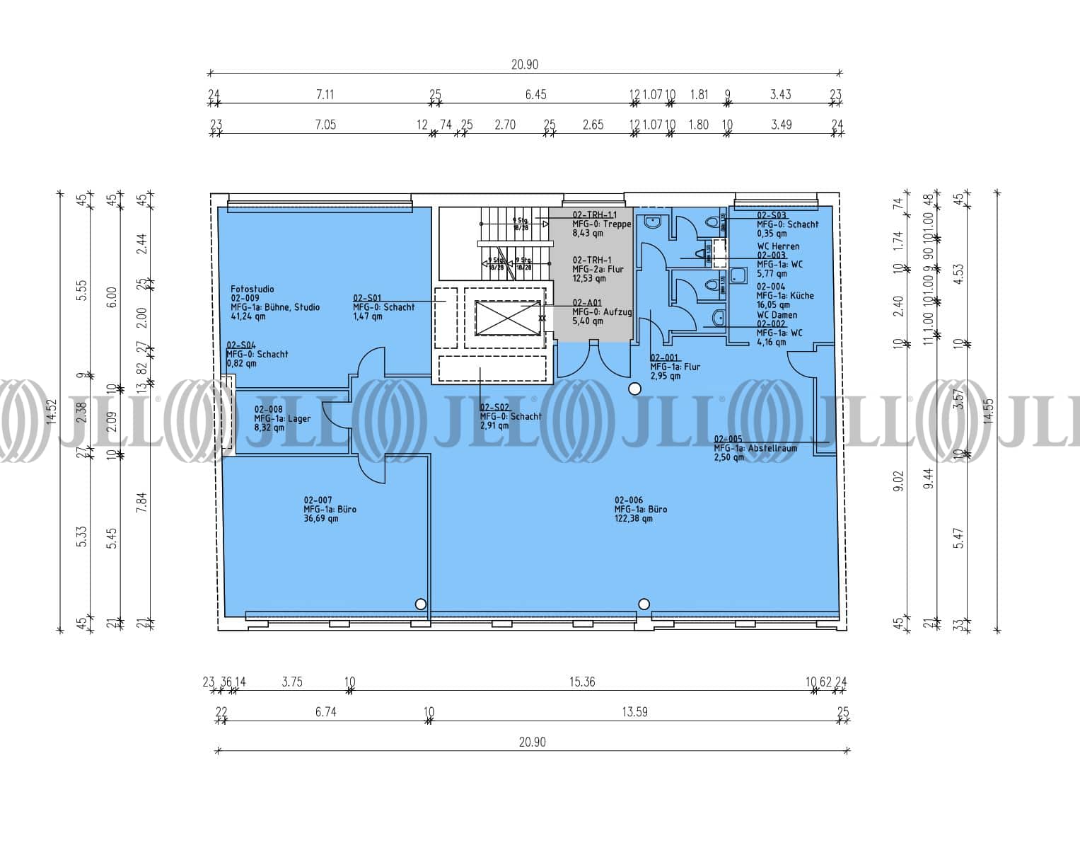
- Fläche260 - 2.680 m²
- VerfügbarkeitSofort
- Objekt
- Ausstattung
- Lage und Verkehrsanbindung
- Grundrisse
- Exposé herunterladen
- Ihr Kontakt
- Anfrage senden
Zertifizierungen
Energieausweis
Für diese Liegenschaft liegt ein Verbrauchsausweis vom 30.09.2016 vom Eigentümer/Vermieter vor. Der wesentliche Energieträger der Liegenschaft ist KWK. Der Endenergieverbrauch Strom beträgt 67.90 kWh/(m²*a). Der Endenergieverbrauch Wärme beträgt 103.40 kWh/(m²*a).Verfügbare Fläche
Lage und Verkehrsanbindung
Das Objekt befindet sich in dem Berliner Bezirk Mitte - in unmittelbarer Nähe zum Hausvogteiplatz. Der Gendarmenmarkt, die Friedrichstraße sowie der Boulevard Unter den Linden sind nur wenige Gehminuten Minuten entfernt.
- Flughafen, Berlin Brandenburg, Fahrzeit: 45 min
- Bundesautobahn, A 100, Fahrzeit: 20 min
- Bus, Werderscher Markt; Linie 147, Gehzeit: 3 min
- U-Bahn, Hausvogteiplatz; Linie U2, Gehzeit: 2 min
- Hauptbahnhof, Berlin, Fahrzeit: 15 min
Ihr Kontakt

Alexandra Teich
Ihr Kontakt
Marktinformationen
Mietmarkt
Mitte, Berlin
Gew. Ø-Miete
33 € / m²
siehe 167 passende MietobjekteErfahren Sie mehr* Durchschnittspreis auf Grundlage historischer Transaktionen.







