Büros
ID B0369Büroimmobilie - Berlin, Charlottenburg - B0369
Charlottenburg, 10789, Berlin, Berlin
Provisionspflichtig: bei Anmietung 3 Netto-Monatsmieten zzgl. gesetzlicher Umsatzsteuer.** der Wert kann je nach Vertragslaufzeit variieren.
22 € / m²
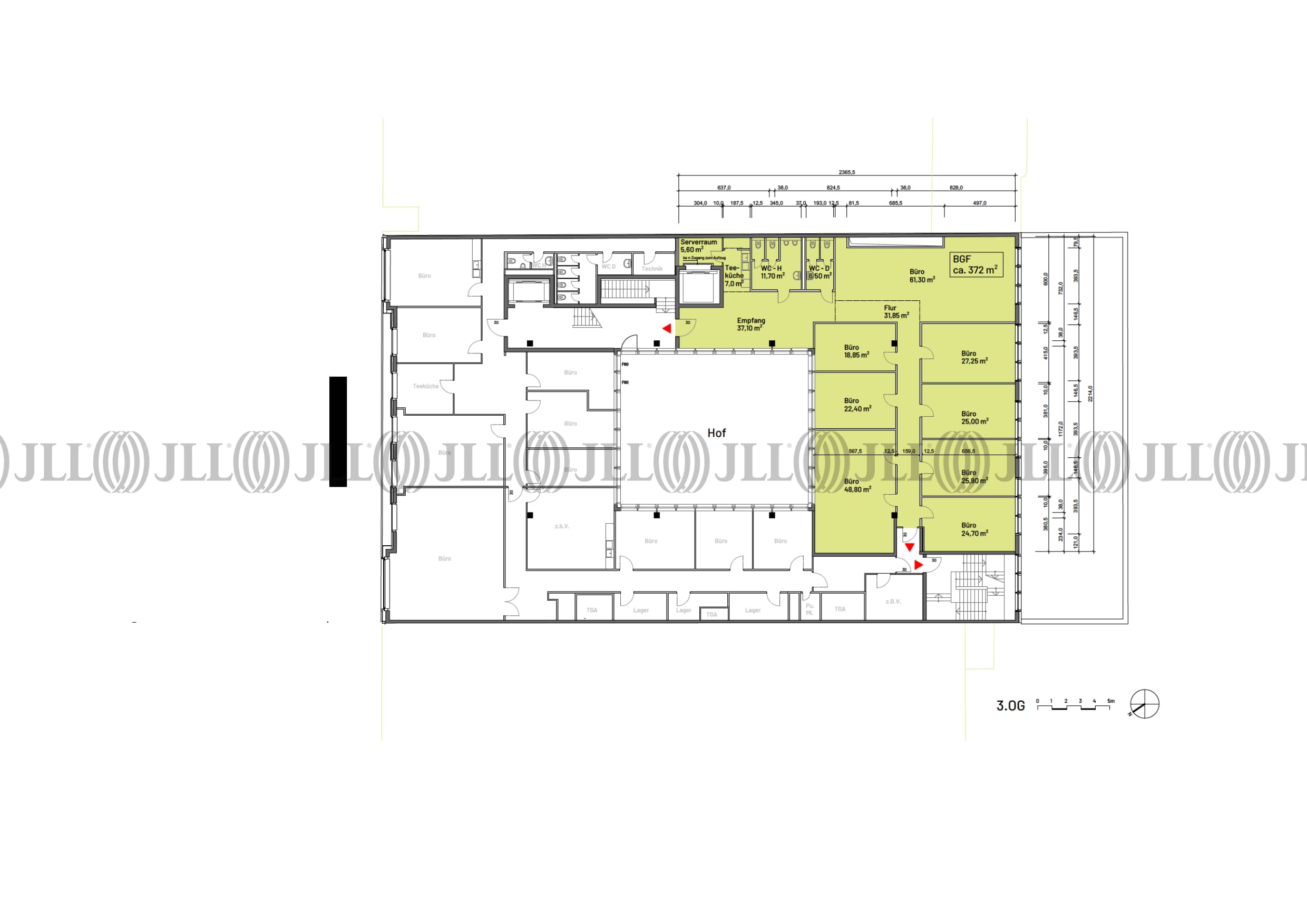
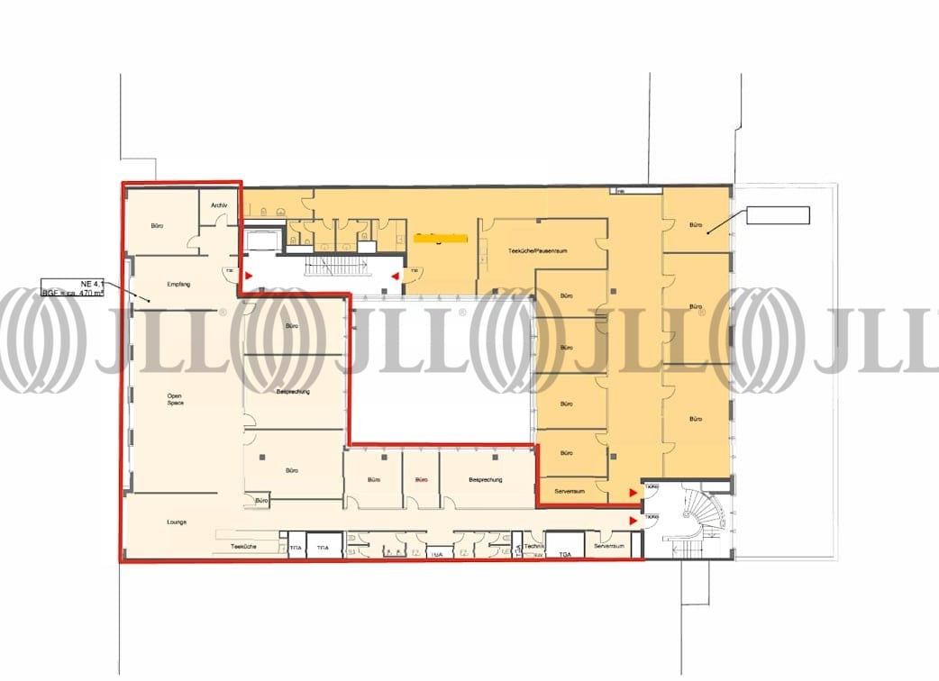
- Fläche372 - 842 m²
- VerfügbarkeitSofort
- Objekt
- Ausstattung
- Lage und Verkehrsanbindung
- Grundrisse
- Exposé herunterladen
- Ihr Kontakt
- Anfrage senden
Zertifizierungen
Energieausweis
LEED: PlatinumFür diese Liegenschaft liegt ein Bedarfsausweis vom 19.07.2024 vom Eigentümer/Vermieter vor. Der wesentliche Energieträger der Liegenschaft ist Heizwerk, fossil. Der Endenergiebedarf Strom beträgt 62 kWh/(m²*a). Der Endenergiebedarf Wärme beträgt 109 kWh/(m²*a).
Verfügbare Fläche
Lage und Verkehrsanbindung
Das Objekt befindet sich im Berliner Bezirk Charlottenburg, in einer der attraktivsten Lagen im Herzen Berlins. In der direkten Nachbarschaft befinden sich Kaufhäuser, Restaurants und Hotels.
- Flughafen, Berlin Brandenburg, Fahrzeit: 30 min
- Bundesautobahn, A 100, Fahrzeit: 10 min
- Hauptbahnhof, Berlin , Fahrzeit: 10 min
- U-Bahn, Wittenbergplatz, Linie U1, U2; U3, Gehzeit: 10 min
- S-Bahn, Zoologischer Garten, Linien S3,S5, S7, S9, S45, Gehzeit: 10 min
Ihr Kontakt

Tobias Rodewald
Ihr Kontakt
Marktinformationen
Mietmarkt
Charlottenburg, Berlin
Gew. Ø-Miete
22 € / m²
siehe 98 passende MietobjekteErfahren Sie mehr* Durchschnittspreis auf Grundlage historischer Transaktionen.















