Büros
ID B0357Provisionsfrei
Büroimmobilie - Berlin, Charlottenburg - B0357
Charlottenburg, 10719, Berlin, Berlin
27 € - 30 € / m²
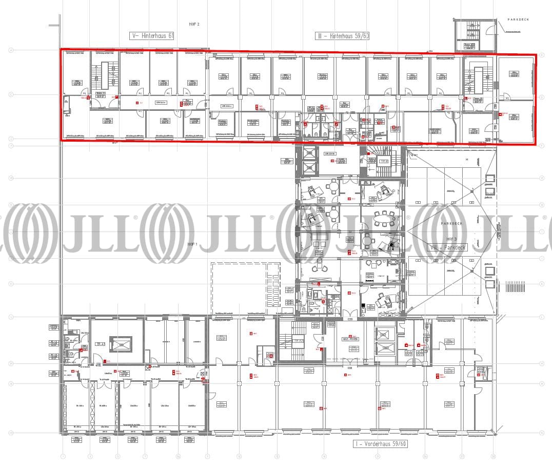
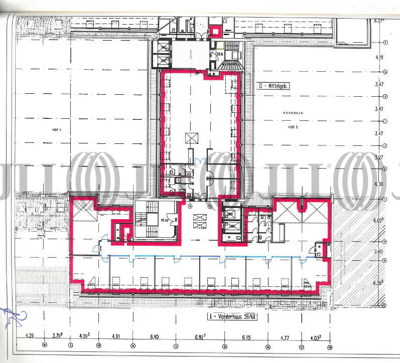
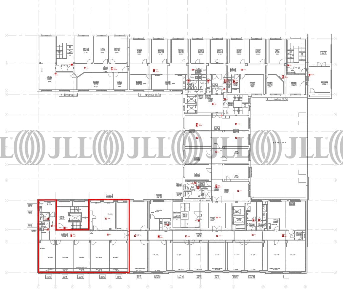
- Fläche223 - 1.832 m²
- VerfügbarkeitSofort
- Objekt
- Ausstattung
- Lage und Verkehrsanbindung
- Grundrisse
- Exposé herunterladen
- Ihr Kontakt
- Anfrage senden
Zertifizierungen
Energieausweis
Für diese Liegenschaft liegt ein Bedarfsausweis vom 30.09.2009 vom Eigentümer/Vermieter vor. Die wesentlichen Energieträger der Liegenschaft sind Fernwärme, Strom. Endenergiebedarf: 132.40000 kWh/(m²*a)Verfügbare Fläche
Lage und Verkehrsanbindung
Das Objekt befindet sich in zentraler Innenstadtlage zwischen der Lietzenburger Straße und dem Kurfürstendamm, in einer der architektonisch anspruchsvollsten Geschäfts- und Wohngegenden von Berlin. Die Umgebung ist gesäumt von einer Vielzahl an Einzelhändlern, Restaurants und Geschäften des täglichen Bedarfs.
- Flughafen, Berlin Brandenburg, Fahrzeit: 25 min
- Bundesautobahn, A 100, Fahrzeit: 10 min
- Bus, Bleibtreustraße, Linien 109,110, M19, M29, Gehzeit: 3 min
- Hauptbahnhof, Berlin, Fahrzeit: 12 min
- U-Bahn, Uhlandstraße, Linie U1, Gehzeit: 5 min
Ihr Kontakt

Alexandra Teich
Ihr Kontakt
Marktinformationen
Mietmarkt
Charlottenburg, Berlin
Gew. Ø-Miete
27 € - 30 € / m²
siehe 98 passende MietobjekteErfahren Sie mehr* Durchschnittspreis auf Grundlage historischer Transaktionen.











