Büros
ID B0356Provisionsfrei
Büroimmobilie - Berlin, Charlottenburg - B0356
Charlottenburg, 10623, Berlin, Berlin
26 € - 28 € / m²
- Fläche168 - 3.562 m²
- VerfügbarkeitSofort
- Objekt
- Ausstattung
- Lage und Verkehrsanbindung
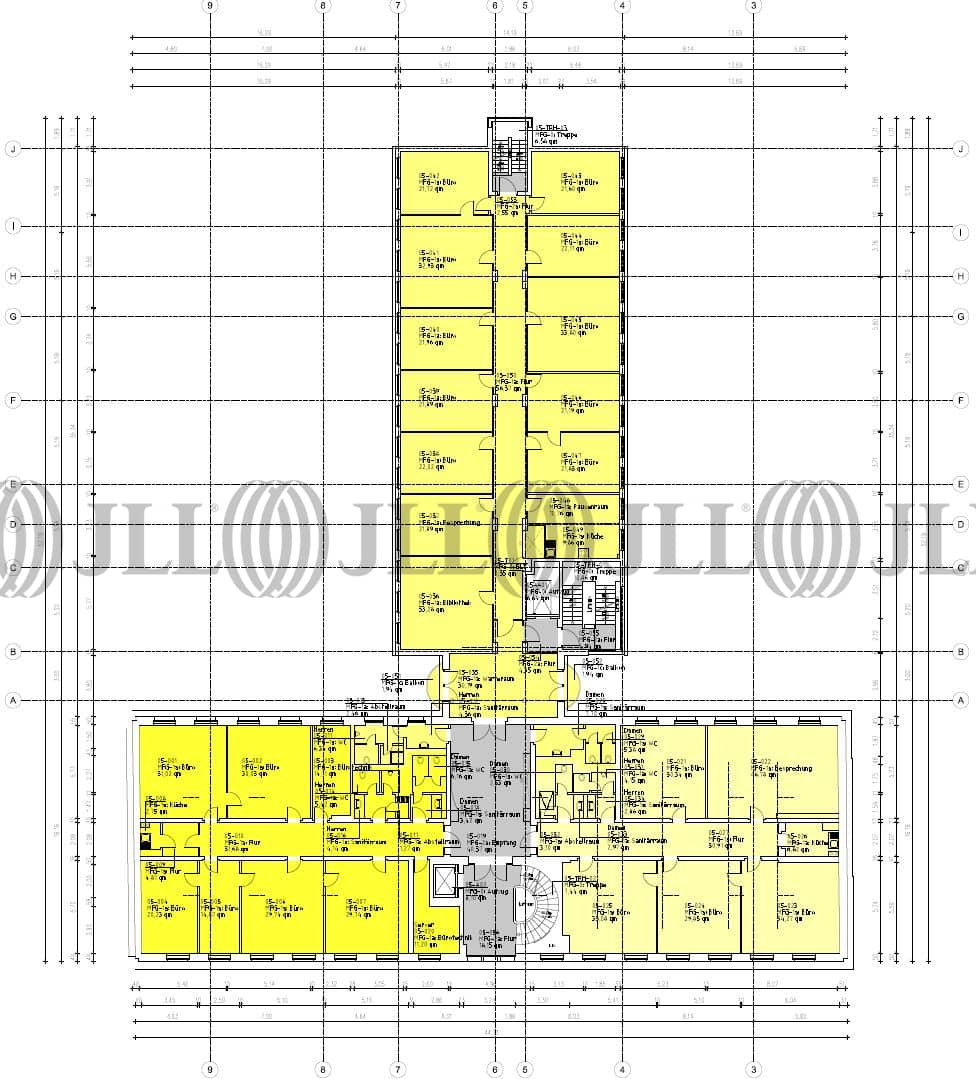
- Grundrisse
- Exposé herunterladen
- Ihr Kontakt
- Anfrage senden
Zertifizierungen
Energieausweis
Für diese Liegenschaft liegt ein Bedarfsausweis vom 08.09.2009 vom Eigentümer/Vermieter vor. Der wesentliche Energieträger der Liegenschaft ist Fernwärme. Endenergiebedarf: 210.40000 kWh/(m²*a)Verfügbare Fläche
Lage und Verkehrsanbindung
Das Gebäude befindet sich in der Uhlandstraße zwischen Kurfürstendamm und Kantstraße. Es befindet sich somit in einer sehr guten Innenstadtlage West-Berlins. Der Anschluß an das öffentliche Verkehrsnetz sowie die Infrastrukturversorgung sind optimal.
- Flughafen, Berlin Brandenburg, Fahrzeit: 25 min
- Bundesautobahn, A 100, Fahrzeit: 10 min
- Bundesstraße, B 2, Fahrzeit: 5 min
- Bus, Uhlandstraße/ Kantstraße Linie M49, Gehzeit: 2 min
- S-Bahn, Zoologischer Garten; Linien S3, S5, S7, S75, S9, Gehzeit: 9 min
- U-Bahn, Zoologischer Garten; Linien U2, U3, U9, Gehzeit: 9 min
- Hauptbahnhof, Berlin, Fahrzeit: 12 min
Ihr Kontakt

Tobias Rodewald
Ihr Kontakt
Marktinformationen
Mietmarkt
Charlottenburg, Berlin
Gew. Ø-Miete
26 € - 28 € / m²
siehe 98 passende MietobjekteErfahren Sie mehr* Durchschnittspreis auf Grundlage historischer Transaktionen.







