Büros
ID B0354Provisionsfrei
Büroimmobilie - Berlin, Mitte - B0354
Mitte, 10117, Berlin, Berlin
15 € / m²
- Fläche169 - 1.230 m²
- VerfügbarkeitSofort
- Objekt
- Ausstattung
- Lage und Verkehrsanbindung
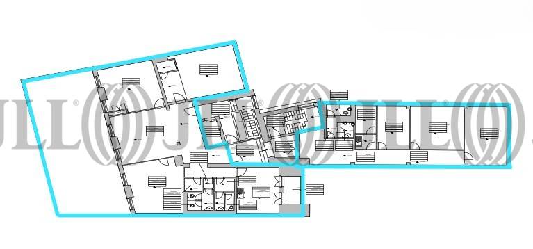
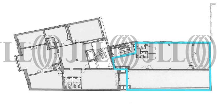
- Grundrisse
- Exposé herunterladen
- Ihr Kontakt
- Anfrage senden
Objekt
Das zwischen 1887 und 1886 errichtete Bestandsgebäude wird mit größter Sorgfalt und Respekt vor seiner ursprünglichen Erscheinung saniert, neugestaltet und erweitert. Die historischen Innenausbaudetails werden, abhängig von ihrem baulichen Zustand, aufwendig restauriert und harmonisch mit modernen Elementen kombiniert, um eine perfekte Symbiose aus Tradition und zeitgemäßem Design zu schaffen.
Zertifizierungen
Energieausweis
DGNB: SilverFür diese Liegenschaft liegt ein Bedarfsausweis vom 2015-09-23 vom Eigentümer/Vermieter vor. Die wesentlichen Energieträger der Liegenschaft sind Strom,Fernwärme. Der Endenergiebedarf Strom beträgt 34.10 kWh/(m²*a). Der Endenergiebedarf Wärme beträgt 142.80 kWh/(m²*a).
Verfügbare Fläche
Lage und Verkehrsanbindung
Das Voßpalais ist zentral gelegen im Bezirk Mitte. Diese Gegend ist bekannt für ihre unmittelbare Nähe zu Regierungsgebäuden und historischen Sehenswürdigkeiten, darunter das Brandenburger Tor und der Potsdamer Platz. Die Umgebung ist geprägt von einer Mischung aus modernen Büros, historischen Gebäuden und kulturellen Einrichtungen. Dienstleister des täglichen Bedarf befinden sich in unmittelbarer Nähe.
- S-Bahn, Potsdamer Platz, Linien S1, S2, S25, S26, Gehzeit: 5 min
- U-Bahn, Potsdamer Platz, Linie U2, Gehzeit: 5 min
- U-Bahn, Anton-Wilhelm-Amo-Straße, Linie U2, Gehzeit: 3 min
- Bus, S + U Potsdamer Platz, Linien M48, M41, 200, Gehzeit: 5 min
- Bundesautobahn, A 100, Fahrzeit: 20 min
- Flughafen, Berlin Brandenburg, Fahrzeit: 30 min
Ihr Kontakt

Tobias Rodewald
Ihr Kontakt
Marktinformationen
Mietmarkt
Mitte, Berlin
Gew. Ø-Miete
15 € / m²
siehe 176 passende MietobjekteErfahren Sie mehr* Durchschnittspreis auf Grundlage historischer Transaktionen.












