Büros
ID B0349Provisionsfrei
Aktualisiert
Büroimmobilie - Berlin, Neukölln - B0349
Neukölln, 12057, Berlin, Berlin
12 € / m²
- Fläche250 - 2.797 m²
- VerfügbarkeitSofort
- Objekt
- Ausstattung
- Lage und Verkehrsanbindung
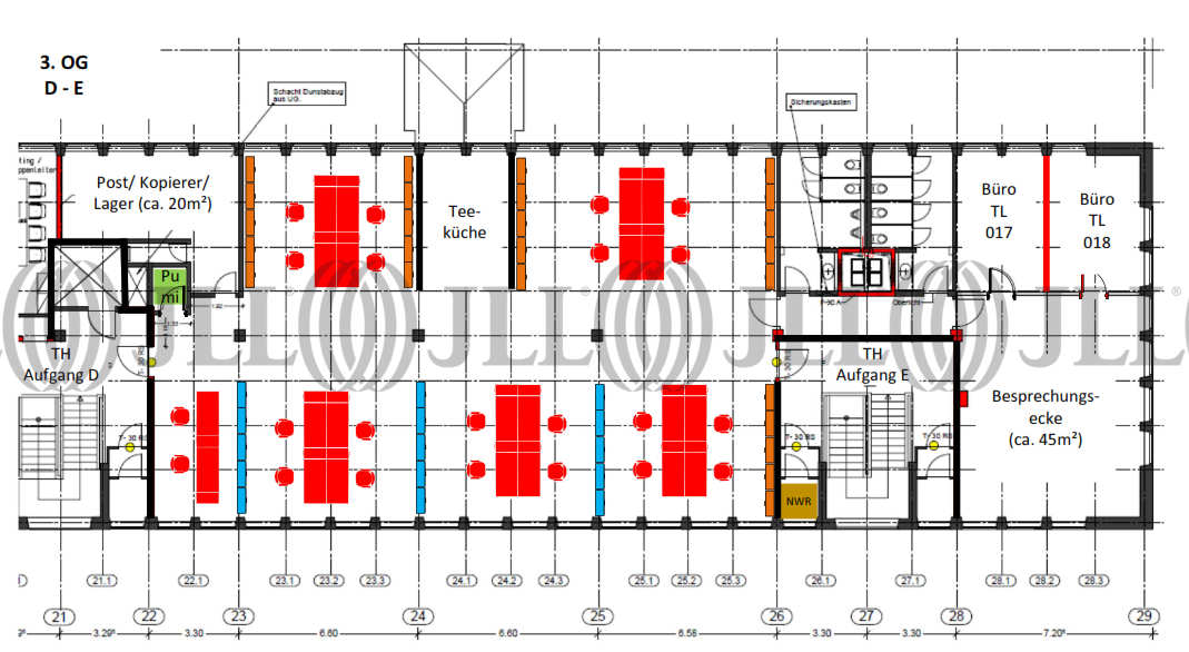
- Grundrisse
- Exposé herunterladen
- Ihr Kontakt
- Anfrage senden
Objekt
Verwaltungsgebäude unter Denkmalschutz in charakteristischer Bauhaus-Architektur. Das Objekt überzeugt durch seine zentrale Lage mit optimaler Verkehrsanbindung zu allen Stadtteilen. Mit ihrer modernen Architektur und den flexiblen Nutzungsmöglichkeiten eignet sich das Objekt ideal für unterschiedliche Branchen und Anforderungen.
Zertifizierungen
Energieausweis
Für diese Liegenschaft liegt ein Verbrauchsausweis vom 2013-11-18 vom Eigentümer/Vermieter vor. Der wesentliche Energieträger der Liegenschaft ist Fernwärme. Der Endenergieverbrauch Strom beträgt 38.10 kWh/(m²*a). Der Endenergieverbrauch Wärme beträgt 124.70 kWh/(m²*a).Verfügbare Fläche
Lage und Verkehrsanbindung
Das Objekt befindet sich im Bezirk Neukölln nahe dem Estrel Hotel- und Conventioncenter. Das Gebiet verfügt über eine gute Infrastruktur.
- Flughafen, Berlin Brandenburg, Fahrzeit: 15 min
- Bundesautobahn, A 100, Fahrzeit: 10 min
- Bus, Dammweg/ Sonnenallee; Linien M41, 377, Gehzeit: 2 min
- S-Bahn, Kölnische Heide; Linien S45, S46, S47, Gehzeit: 5 min
- Hauptbahnhof, Hauptbahnhof, Fahrzeit: 12 min
Ihr Kontakt

Alexandra Teich
Ihr Kontakt
Marktinformationen
Mietmarkt
Neukölln, Berlin
siehe 1 passende MietobjekteErfahren Sie mehr
* Durchschnittspreis auf Grundlage historischer Transaktionen.








