Büros
ID B0327Provisionsfrei
Büroimmobilie - Berlin, Charlottenburg - B0327
Charlottenburg, 10587, Berlin, Berlin
15 € / m²
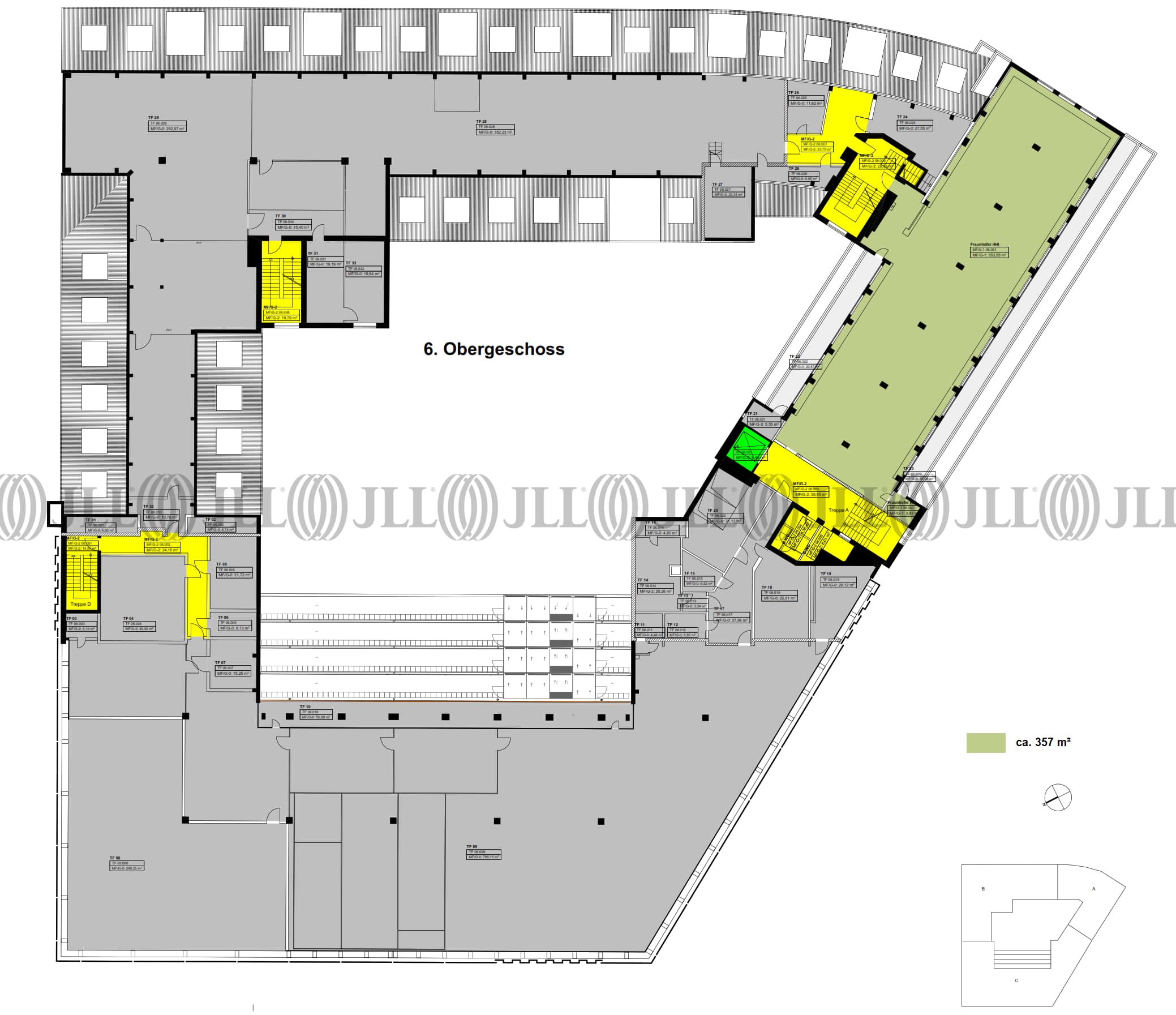
- Fläche357 - 7.647 m²
- VerfügbarkeitAuf Anfrage
- Objekt
- Ausstattung
- Lage und Verkehrsanbindung
- Grundrisse
- Exposé herunterladen
- Ihr Kontakt
- Anfrage senden
Objekt
Die Liegenschaft besticht durch ihren einzigartigen terrassenförmigen Zuschnitt, der zusammen mit den teilweise beeindruckend großen Raumtiefen in den unteren Stockwerken ein Gefühl von Großzügigkeit und Individualität vermittelt. Diese architektonische Gestaltung schafft ein unvergleichliches Ambiente und bietet vielfältige Nutzungsmöglichkeiten.
Verfügbare Fläche
Lage und Verkehrsanbindung
Durch die Lage im Zentrum von Berlin besteht eine direkte Anbindung an die City West und die City Ost . Das Gebäude, als Bestandteil des ehemaligen Siemensstandortes, liegt direkt am Landwehrkanal und ist in das Gesamtkonzept der Spreestadt Charlottenburg eingebunden.
- Hauptbahnhof, Berlin, Fahrzeit: 7 min
- S-Bahn, Tiergarten, Linien S5, S7, S75, Gehzeit: 10 min
- Bus, Marchbrücke , Linie 245, Gehzeit: 5 min
- Bundesautobahn, A 100, Fahrzeit: 15 min
- Flughafen, Berlin Brandenburg, Fahrzeit: 35 min
Ihr Kontakt

Steve Ritt
Ihr Kontakt
Marktinformationen
Mietmarkt
Charlottenburg, Berlin
Gew. Ø-Miete
15 € / m²
siehe 101 passende MietobjekteErfahren Sie mehr* Durchschnittspreis auf Grundlage historischer Transaktionen.



