Büros
ID B0321Provisionsfrei
Büroimmobilie - Berlin, Charlottenburg - B0321
Charlottenburg, 10707, Berlin, Berlin
34 € / m²
- Fläche165 - 3.485 m²
- VerfügbarkeitSofort
- Objekt
- Ausstattung
- Lage und Verkehrsanbindung
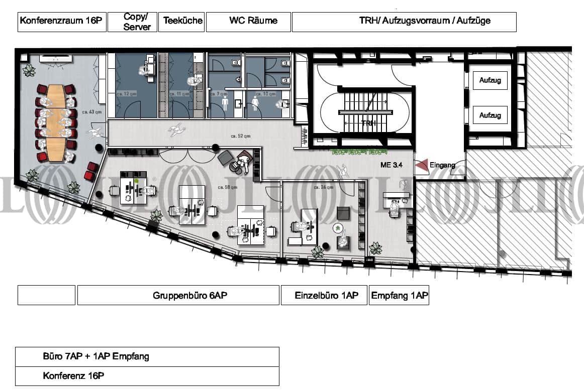
- Grundrisse
- Exposé herunterladen
- Ihr Kontakt
- Anfrage senden
Objekt
Bei dem repräsentativen Büro- und Geschäftshaus handelt es sich um ein ensembleprägendes und denkmalgeschütztes Gebäude aus dem Jahr 1965, das aus einem Turm- und einem Riegelbau besteht. Im Jahr 2013 erfuhr die Immobilie eine umfassende Revitalisierung und wurde durch einen prismenförmigen sowie einen gläsernen Neubau erweitert. Diese Modernisierung hat das gesamte Erscheinungsbild und das Ambiente des Objekts deutlich aufgewertet. Im Inneren erwarten die Nutzer effiziente und repräsentative Büroflächen, die durch eine hochwertige Ausstattung wie Natursteinböden und flexible Lichtkonzepte überzeugen.
Zertifizierungen
Energieausweis
LEED: GoldFür diese Liegenschaft liegt ein Bedarfsausweis vom 14.11.2013 vom Eigentümer/Vermieter vor. Die wesentlichen Energieträger der Liegenschaft sind Fernwärme, Nahwärme, Strom. Endenergiebedarf: 230.70000 kWh/(m²*a)
Verfügbare Fläche
Lage und Verkehrsanbindung
Das Objekt befindet sich auf dem Kurfürstendamm und liegt an der Kreuzung zur Bleibtreustraße. Es verfügt somit über eine exzellente Innenstadtlage mit einer hervorragenden Anbindung an das öffentliche Verkehrsnetz. Darüber hinaus ist ein funktionales infrastrukturelles Umfeld vorhanden. Ein idealer Standort im Herzen Berlins.
- S-Bahn, Savingnyplatz, Linien S5, S7, S75, Gehzeit: 5 min
- Bus, Bleibtreustraße, Linien M19, M29, N10, 109, 110, Gehzeit: 2 min
- Bundesautobahn, A 100, Fahrzeit: 15 min
- Flughafen, Berlin Brandenburg, Fahrzeit: 35 min
Ihr Kontakt

Tobias Rodewald
Ihr Kontakt
Marktinformationen
Mietmarkt
Charlottenburg, Berlin
Gew. Ø-Miete
34 € / m²
siehe 101 passende MietobjekteErfahren Sie mehr* Durchschnittspreis auf Grundlage historischer Transaktionen.











