Büros
ID B0309Provisionsfrei
Aktualisiert
Büroimmobilie - Berlin, Johannisthal - B0309
Johannisthal, 12489, Berlin, Berlin
16,90 € / m²
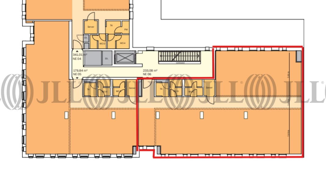
- Fläche180 - 414 m²
- VerfügbarkeitSofort
- Objekt
- Ausstattung
- Lage und Verkehrsanbindung
- Grundrisse
- Exposé herunterladen
- Ihr Kontakt
- Anfrage senden
Zertifizierungen
Energieausweis
Für diese Liegenschaft liegt ein Bedarfsausweis vom 24.03.2020 vom Eigentümer/Vermieter vor. Die wesentlichen Energieträger der Liegenschaft sind Fernwärme, KWK, Nahwärme, Strom. Der Endenergiebedarf Strom beträgt 36.00 kWh/(m²*a). Der Endenergiebedarf Wärme beträgt 91.00 kWh/(m²*a).Verfügbare Fläche
Lage und Verkehrsanbindung
Das Objekt befindet sich an der Hauptachse des Technologiestandortes Adlershof. Der Standort zeichnet sich durch eine gute Infrastruktur mit einem eigenen Autobahnanschluss, dem S-Bahnhof Adlershof und der Nähe zum neuen Flughafen Berlin-Brandenburg aus.
- Flughafen, Berlin Brandenburg, Fahrzeit: 15 min
- Bundesautobahn, A 113, Fahrzeit: 4 min
- Bus, Walter-Nernst-Straße Linien 162, 164, Gehzeit: 2 min
- Hauptbahnhof, Berlin , Fahrzeit: 35 min
- S-Bahn, Adlershof; S8, S9, S45, S46, Gehzeit: 5 min
Ihr Kontakt

Chiara Costa Jacinto
Ihr Kontakt






