Büros
ID B0268Provisionsfrei
Büroimmobilie - Berlin, Mitte - B0268
Mitte, 10117, Berlin, Berlin
30 € / m²
- Fläche347 - 3.231 m²
- VerfügbarkeitSofort
- Objekt
- Ausstattung
- Lage und Verkehrsanbindung
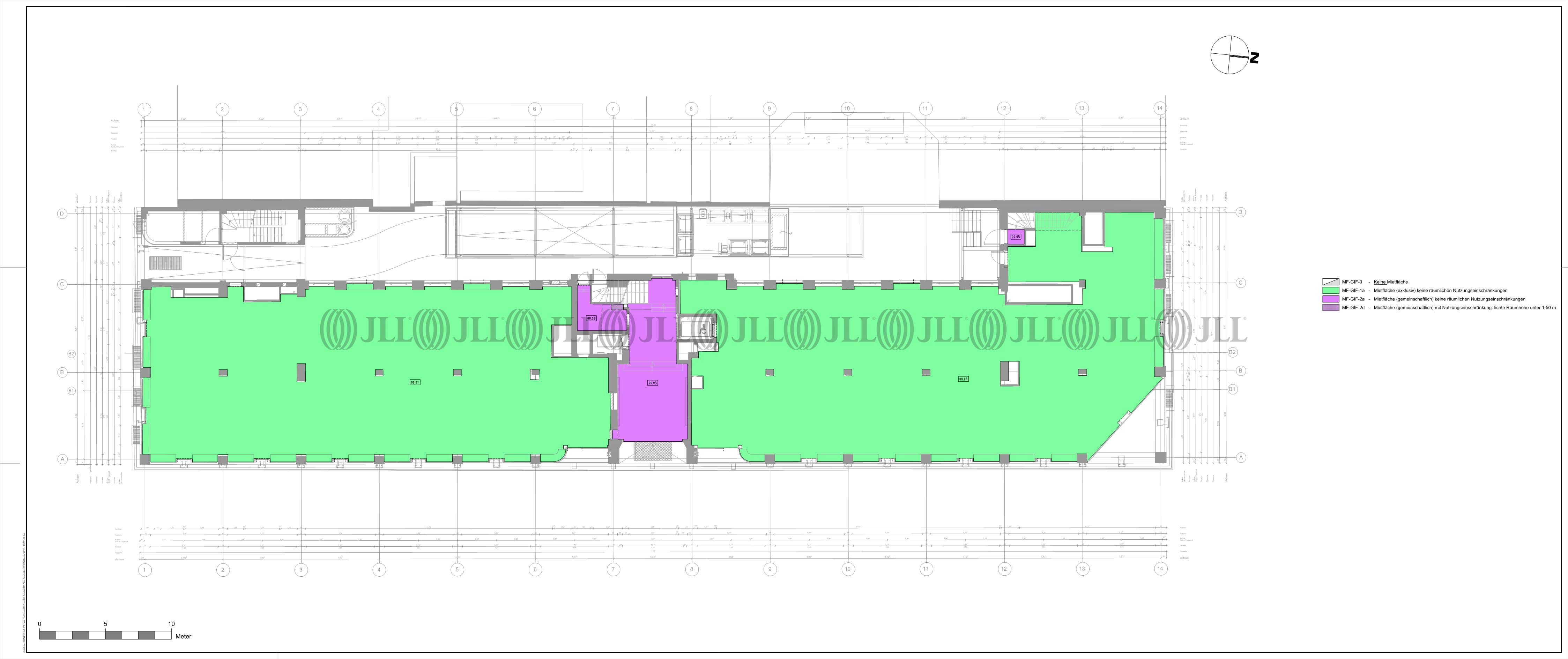
- Grundrisse
- Exposé herunterladen
- Ihr Kontakt
- Anfrage senden
Objekt
Das Haus Friedrichstadt ist ein denkmalgeschütztes Büro- und Geschäftsgebäude in der Friedrichstraße, entworfen vom Architekten Jürgen Bachmann im Stil der spätexpressionistischen Architektur der 1920er Jahre. Die umfassende Revitalisierung kombiniert die einzigartigen Merkmale dieses historischen Gebäudes mit modernster technischer Ausstattung, wodurch die Nachhaltigkeitszertifizierung nach LEED-Gold-Standard erreicht wird.
Zertifizierungen
Energieausweis
LEED: Gold WIREDSCORE: PlatinumVerfügbare Fläche
Lage und Verkehrsanbindung
Das Objekt befindet sich im Berliner Stadtteil Mitte auf der Friedrichstraße in der Nähe des historischen Checkpoint Charlie. Über die Leipziger Straße sind der Alexanderplatz und der Kurfürstendamm gut zu erreichen. Auf der Friedrichstraße befinden sich eine Großzahl an Restaurants und Geschäften des täglichen Bedarfs.
- Hauptbahnhof, Berlin, Fahrzeit: 7 min
- U-Bahn, Stadtmitte; Linien U2, U6, Gehzeit: 3 min
- Bus, U Stadtmitte/Leipziger Str.; Linie M48, Gehzeit: 1 min
- Bundesautobahn, A 100, Fahrzeit: 15 min
- Flughafen, Berlin Brandenburg, Fahrzeit: 30 min
Ihr Kontakt

Tobias Rodewald
Ihr Kontakt
Marktinformationen
Mietmarkt
Mitte, Berlin
Gew. Ø-Miete
30 € / m²
siehe 176 passende MietobjekteErfahren Sie mehr* Durchschnittspreis auf Grundlage historischer Transaktionen.









