Büros
ID B0259Provisionsfrei
Aktualisiert
Büroimmobilie - Berlin, Charlottenburg - B0259
Charlottenburg, 10789, Berlin, Berlin
21,50 € / m²
- Fläche158 - 788 m²
- VerfügbarkeitSofort
- Objekt
- Ausstattung
- Lage und Verkehrsanbindung
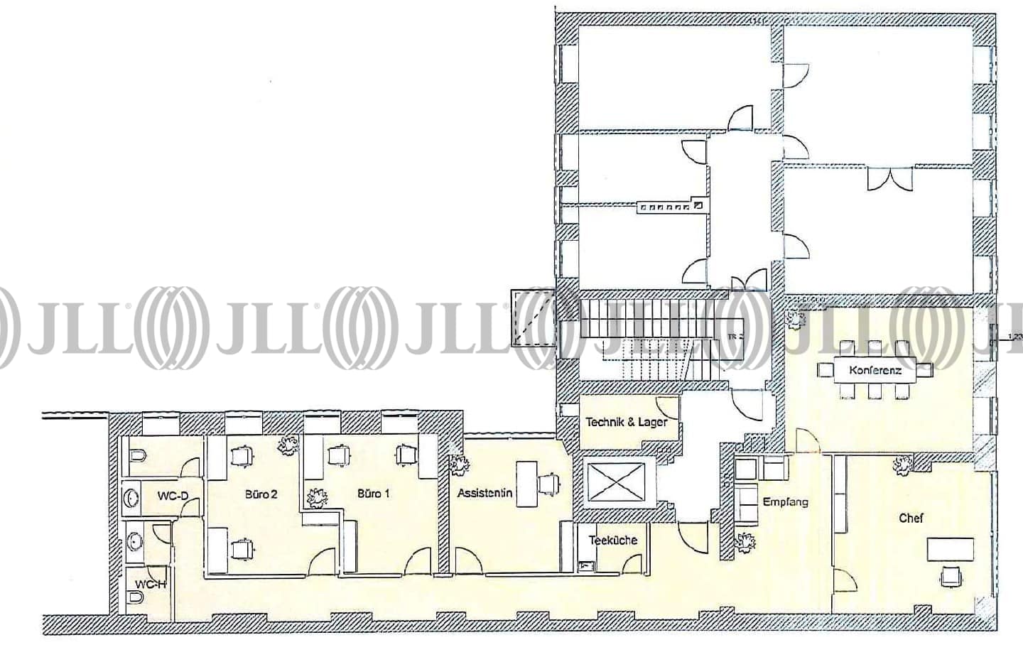
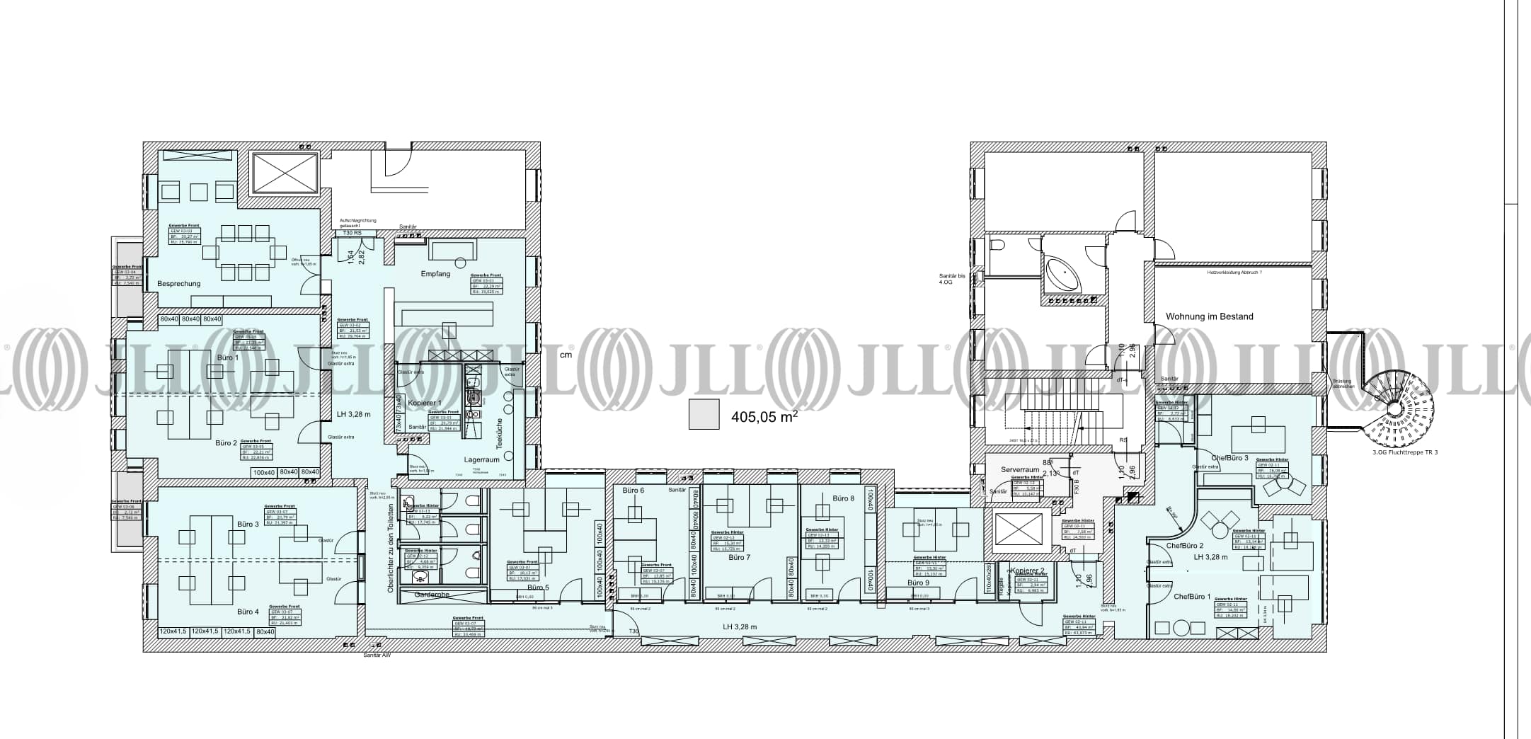
- Grundrisse
- Exposé herunterladen
- Ihr Kontakt
- Anfrage senden
Objekt
Das Gebäude wurde vollständig entkernt, saniert und modernisiert, hat eine moderne, hochwertige Außenfassade erhalten und wurde um eine Etage aufgestockt. Die stilvolle Kombination aus charmantem Altbauflair und modernen, hochwertigen Ausbauelementen machen diese Flächen zu einem ganz besonderen Arbeitsplatz und Präsentationsraum für Kunden und Patienten.
Zertifizierungen
Energieausweis
Für diese Liegenschaft liegt ein Verbrauchsausweis vom 08.02.2019 vom Eigentümer/Vermieter vor. Die wesentlichen Energieträger der Liegenschaft sind KWK, Strom. Der Endenergieverbrauch Strom beträgt 41.60 kWh/(m²*a). Der Endenergieverbrauch Wärme beträgt 57.00 kWh/(m²*a).Verfügbare Fläche
Lage und Verkehrsanbindung
Das Objekt befindet sich im Berliner Stadtbezirk Charlottenburg – nur wenige Schritte entfernt von der Tauentzienstraße, einer der exklusivsten Einkaufsstraßen Berlins. Zahlreiche namhafte Einzelhandelsflächen, das international bekannte KaDeWe sowie gastronomische Einrichtungen prägen das Umfeld.
- Flughafen, Berlin Brandenburg, Fahrzeit: 30 min
- Bundesautobahn, A 100, Fahrzeit: 10 min
- Bus, U-Bahnhof Wittenbergplatz; Linien M19, M29, M46, Gehzeit: 5 min
- U-Bahn, Wittenbergplatz; Linien U1, U2, U3, Fahrzeit: 5 min
- Hauptbahnhof, Berlin, Fahrzeit: 12 min
Ihr Kontakt

Alexandra Teich
Ihr Kontakt
Marktinformationen
Mietmarkt
Charlottenburg, Berlin
Gew. Ø-Miete
21,50 € / m²
siehe 97 passende MietobjekteErfahren Sie mehr* Durchschnittspreis auf Grundlage historischer Transaktionen.

