Büros
ID B0258Provisionsfrei
Aktualisiert
Büroimmobilie - Berlin, Mitte - B0258
Mitte, 10117, Berlin, Berlin
26 € / m²
- Fläche339 - 2.543 m²
- VerfügbarkeitSofort
- Objekt
- Ausstattung
- Lage und Verkehrsanbindung
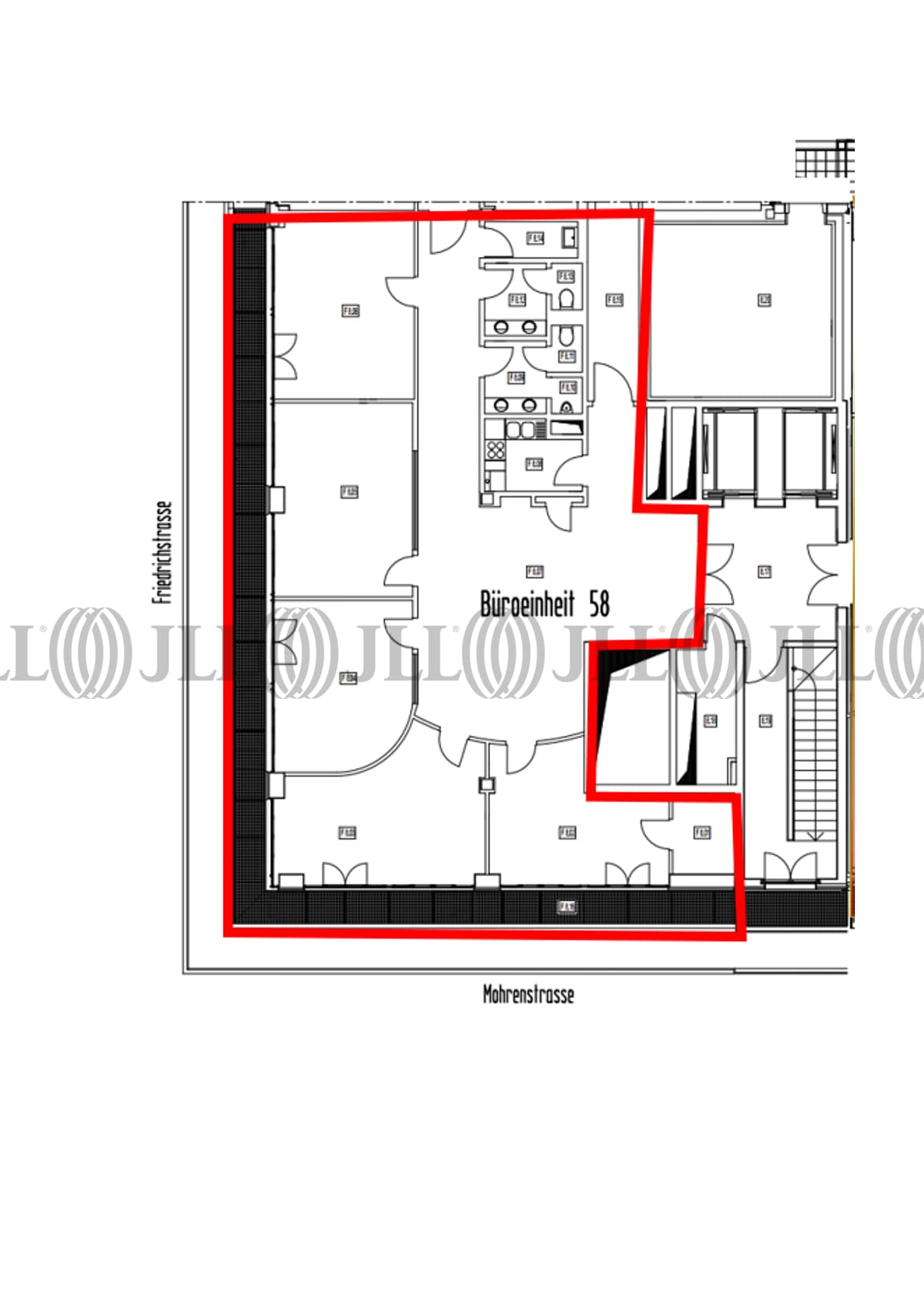
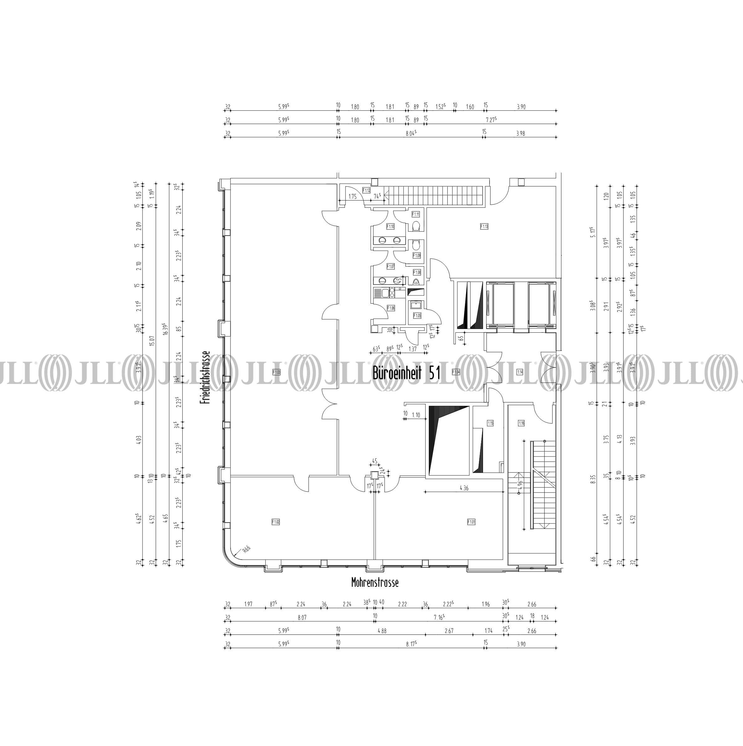
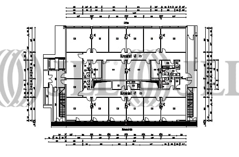
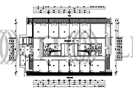
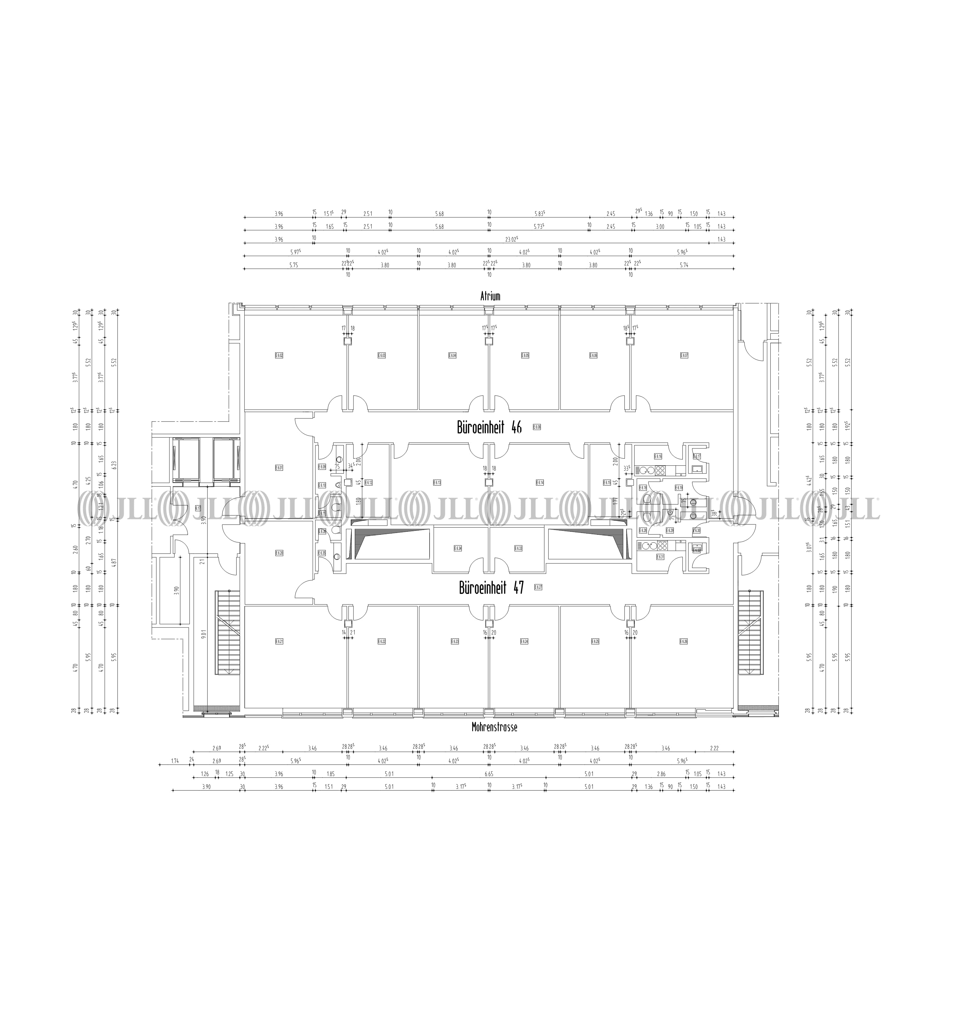
- Grundrisse
- Exposé herunterladen
- Ihr Kontakt
- Anfrage senden
Objekt
Dieses Objekt setzt sich aus fünf miteinander verbundenen Geschäftshäusern und einem Boarding House zusammen. Die repräsentativen Büroflächen verfügen über einen hochwertigen Standard, welcher den modernen Anforderungen heutiger Büronutzer gerecht wird. Die Fassade des gesamten Ensembles, gestaltet aus edlem Naturstein und Glas, verleiht ihm eine zeitlose und wertige Ausstrahlung. Im Inneren ermöglichen die durchdachten Grundrisse eine flexible Raumaufteilung für verschiedenste Arbeitskonzepte. Große Fensterflächen sorgen für helle, lichtdurchflutete Arbeitsbereiche und fördern so eine produktive und angenehme Atmosphäre.
Zertifizierungen
Energieausweis
Für diese Liegenschaft liegt ein Verbrauchsausweis vom 05.07.2019 vom Eigentümer/Vermieter vor. Die wesentlichen Energieträger der Liegenschaft sind Fernwärme, Nahwärme, Strom. Der Endenergieverbrauch Strom beträgt 133.00 kWh/(m²*a). Der Endenergieverbrauch Wärme beträgt 77.00 kWh/(m²*a).Verfügbare Fläche
Lage und Verkehrsanbindung
Der Standort befindet sich in einer der gefragtesten und repräsentativsten Lagen im Zentrum Berlins. In unmittelbarer Nachbarschaft zu einem der prachtvollsten Plätze Europas, der für sein harmonisches Ensemble aus Konzerthaus und zwei Domen berühmt ist, bietet die Adresse ein einzigartiges und prestigeträchtiges Umfeld. Die Umgebung ist ein pulsierendes Zentrum für Wirtschaft, Kultur und Handel, gesäumt von internationalen Marken, renommierten Anwaltskanzleien und Unternehmensberatungen. Eine exzellente Auswahl an gehobener Gastronomie und Hotels rundet die erstklassige Infrastruktur ab. Die Anbindung an den öffentlichen Nahverkehr ist durch eine U-Bahn-Station mit zwei kreuzenden Linien direkt vor Ort optimal gewährleistet.
- Hauptbahnhof, Berlin, Fahrzeit: 7 min
- S-Bahn, Friedrichstraße; Linien S1, S2, S25, S26, S3, S5, S7, S9, Gehzeit: 10 min
- U-Bahn, Stadtmitte; Linien U2, U6, Gehzeit: 2 min
- Straßenbahn/Tram, S+U Friedrichstr.; Linie M1, Gehzeit: 10 min
- Bus, U Stadtmitte/Leipziger Str.; Linien M48, 265, 300, Gehzeit: 3 min
- Bundesautobahn, A 100, Fahrzeit: 20 min
- Flughafen, Berlin Brandenburg, Fahrzeit: 45 min
Ihr Kontakt

Alexandra Teich
Ihr Kontakt
Marktinformationen
Mietmarkt
Mitte, Berlin
Gew. Ø-Miete
26 € / m²
siehe 173 passende MietobjekteErfahren Sie mehr* Durchschnittspreis auf Grundlage historischer Transaktionen.











