Büros
ID B0236Provisionsfrei
Büroimmobilie - Berlin, Halensee - B0236
Halensee, 10709, Berlin, Berlin
18 € / m²
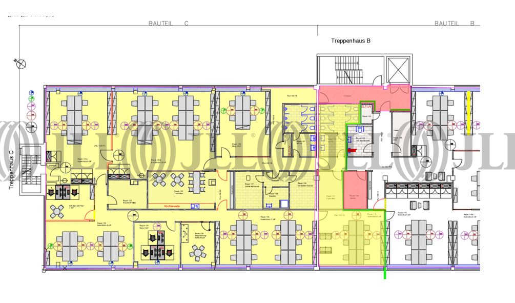
- Fläche660 m²
- VerfügbarkeitAuf Anfrage
- Objekt
- Ausstattung
- Lage und Verkehrsanbindung
- Grundriss
- Exposé herunterladen
- Ihr Kontakt
- Anfrage senden
Objekt
Das fünfgeschossige Gebäude wurde 1964 erbaut, im Jahr 1994 erweitert und kürzlich umfassend modernisiert. Aufgrund der Gebäudetiefe bieten sich die Flächen hervorragend für eine Nutzung als Großraumbüro an, aber auch Gruppen- und Einzelbüros sind hier darstellbar. Eingangsbereich und Treppenhäuser wurden kürzlich renoviert. Das Objekt lässt sich hofseitig beliefern.
Zertifizierungen
Energieausweis
Für diese Liegenschaft liegt ein Bedarfsausweis vom 2015-06-18 vom Eigentümer/Vermieter vor. Der wesentliche Energieträger der Liegenschaft ist Fernwärme. Der Endenergiebedarf Strom beträgt 24.70 kWh/(m²*a). Der Endenergiebedarf Wärme beträgt 73.00 kWh/(m²*a).Verfügbare Fläche
Lage und Verkehrsanbindung
Das Objekt befindet sich im Herzen von Wilmersdorf, zwischen der Paulsborner Straße und dem Hohenzollerndamm. Die Lage bietet eine gute Infrastruktur und eine schnelle Anbindung an den öffentlichen Personennahverkehr. Die Anschlussstelle an die Autobahn A100 ist ebenfalls in unmittelbarer Nähe.
- S-Bahn, Hohenzollerndamm, Linien S41, S42, S45, S46, Gehzeit: 8 min
- Bus, Seesener Straße, Linien 110, 310, Gehzeit: 4 min
- Bundesautobahn, A 100, Fahrzeit: 2 min
- Bundesautobahn, A 115, Fahrzeit: 5 min
- Bundesstraße, B 2, Fahrzeit: 5 min
- Bundesstraße, B 1, Fahrzeit: 10 min
- Flughafen, Berlin Brandenburg, Fahrzeit: 30 min
Ihr Kontakt

Tobias Rodewald
Ihr Kontakt


