Büros
ID B0234Premium JLL
Provisionsfrei
Büroimmobilie - Dessau-Roßlau - B0234
06844, Dessau-Roßlau, Sachsen-Anhalt
7 € / m²
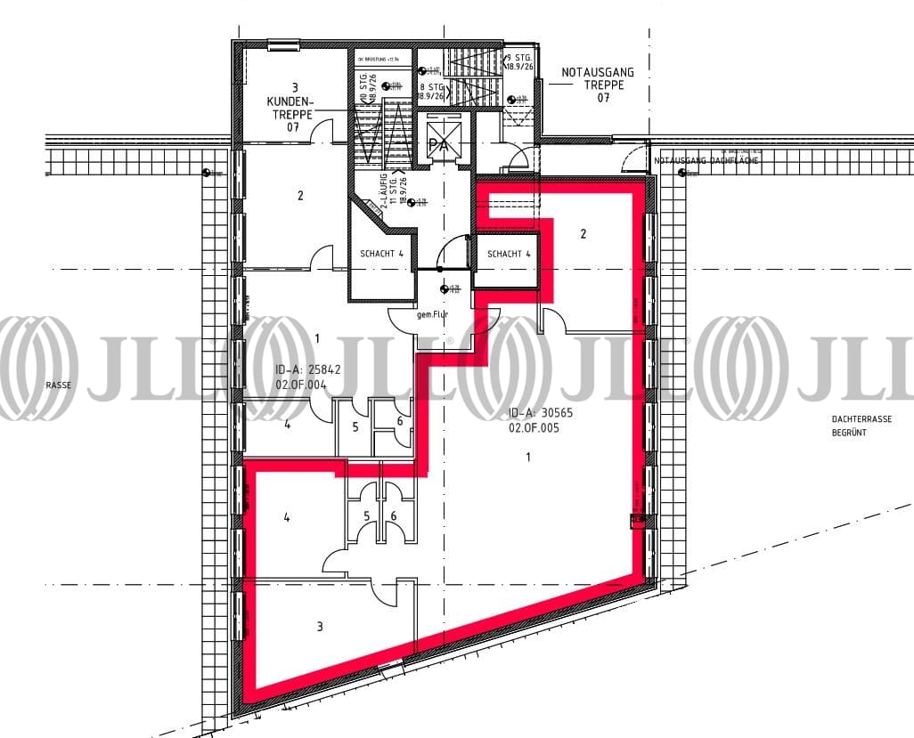
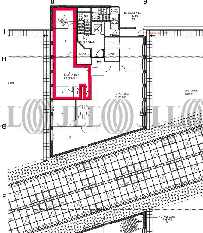
- Fläche174 - 712 m²
- VerfügbarkeitSofort
- Objekt
- Ausstattung
- Lage und Verkehrsanbindung
- Grundrisse
- Exposé herunterladen
- Ihr Kontakt
- Anfrage senden
Objekt
Hier sind Sie direkt an Dessaus erster Adresse. Das Rathaus-Center ist über die Grenzen der Stadt hinaus bekannt und lockt zahlreiche Besucher an. Hier werden Sie auf jeden Fall gesehen! Die Büroflächen werden über moderne und helle Treppenhäuser an der Außenseite des Centers erschlossen und bieten so die Möglichkeit einer eigenen Adressbildung. Die hellen Büroflächen lassen sich flexibel und individuell an die Wünsche des Mieters anpassen und werden in Absprache mit dem Mieter renoviert übergeben.
Zertifizierungen
Energieausweis
Für diese Liegenschaft liegt ein Bedarfsausweis vom 30.08.2019 vom Eigentümer/Vermieter vor. Die wesentlichen Energieträger der Liegenschaft sind Fernwärme, Strom. Der Endenergiebedarf Strom beträgt 161.10 kWh/(m²*a). Der Endenergiebedarf Wärme beträgt 35.90 kWh/(m²*a).Verfügbare Fläche
Lage und Verkehrsanbindung
Das Rathaus-Center befindet sich in bester Innenstadtlage, unmittelbar am Rathaus und der Marienkirche. Eine Vielzahl von Fachgeschäften, sowie zahlreiche gastronomische Einrichtungen bieten Tag für Tag eine Vielzahl verführerischer Angebote für jeden Geschmack. Unternehmen aus unterschiedlichsten Branchen wie WBS Training, persona service oder die DAK Krankenkasse runden das Dienstleistungsangebot am Standort ab.
- Hauptbahnhof, Dessau, Fahrzeit: 2 min
- S-Bahn, Dessau Center S1, S3, S4, Gehzeit: 2 min
- Bundesautobahn, A 9, Fahrzeit: 9 min
- Flughafen, Leipzig/Halle, Fahrzeit: 35 min
Ihr Kontakt

Bernd Giesbert
Ihr Kontakt

