Büros
ID B0232Provisionsfrei
Büroimmobilie - Potsdam, Am Stern, Drewitz, Kirchsteigfeld - B0232
Am Stern, Drewitz, Kirchsteigfeld, 14480, Potsdam, Brandenburg
11,50 € / m²
- Fläche82 m²
- VerfügbarkeitSofort
- Objekt
- Ausstattung
- Lage und Verkehrsanbindung
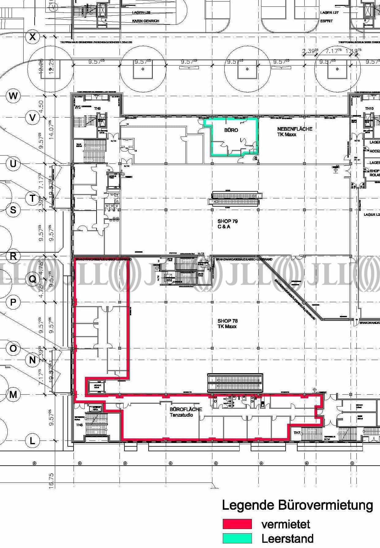
- Grundriss
- Exposé herunterladen
- Ihr Kontakt
- Anfrage senden
Zertifizierungen
Energieausweis
Für diese Liegenschaft liegt ein Verbrauchsausweis vom 2009-05-21 vom Eigentümer/Vermieter vor. Der wesentliche Energieträger der Liegenschaft ist Strom. Der Endenergieverbrauch Strom beträgt 125.30 kWh/(m²*a). Der Endenergieverbrauch Wärme beträgt 132.80 kWh/(m²*a).Verfügbare Fläche
Lage und Verkehrsanbindung
Das Stern-Center ist das attraktivste und größte Einkaufs-Center für die Landeshauptstadt Potsdam und die Region. Eine Vielzahl von Fachgeschäften, Cafes und Restaurants bieten Tag für Tag eine Vielzahl verführerischer Angebote für jeden Geschmack. Hier finden Sie einfach alles unter einem Dach immer wohl temperiert, zu jeder Jahreszeit. Der Haemoplasma Blutspendedienst, Kieferorthopädie und ein Steuerbüro sowie eine Gynäkologische Gemeinschaftspraxis und die Tanzschule Diemke runden das Dienstleistungsangebot am Standort ab.
- Flughafen, Berlin Brandenburg, Fahrzeit: 25 min
- Bundesautobahn, A 115, Fahrzeit: 2 min
- Bus, Potsdam, Stern-Center/Nuthestr., Linien 118, 602, 619, 690, 750, SXF2, Gehzeit: 3 min
- Hauptbahnhof, Berlin, Fahrzeit: 10 min
Ihr Kontakt

Cornelia Vogel
Ihr Kontakt


