Büros
ID B0125Provisionsfrei
Büroimmobilie - Berlin, Tempelhof - B0125
Tempelhof, 12099, Berlin, Berlin
Kontaktieren Sie uns für den Preis
- Fläche612 - 12.749 m²
- VerfügbarkeitAuf Anfrage
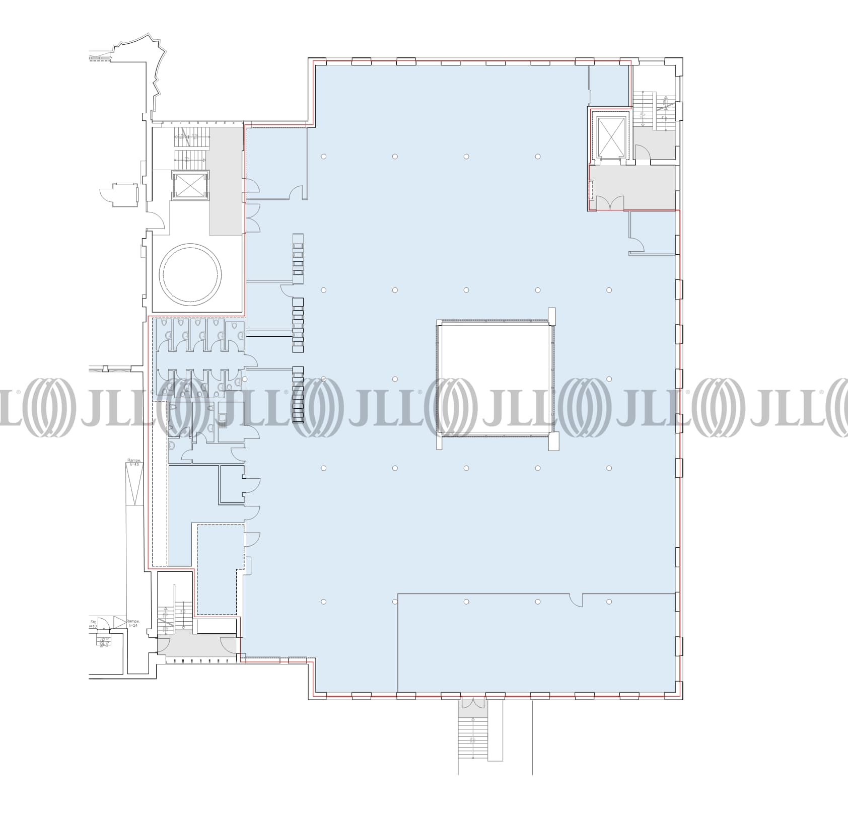
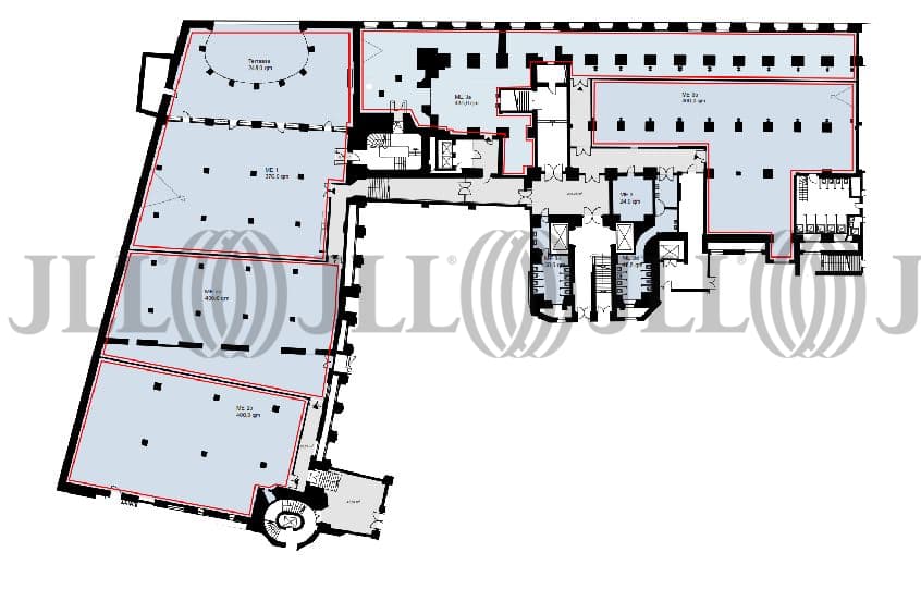
- Objekt
- Ausstattung
- Lage und Verkehrsanbindung
- Grundrisse
- Exposé herunterladen
- Ihr Kontakt
- Anfrage senden
Objekt
Das zwischen 1925 und 1927 errichtete Ullsteinhaus gilt als Wahrzeichen des Bezirks Tempelhof. Der ehemalige Stammsitz des Ullsteinverlages ist heute ein modernes Gewerbezentrum. Im Jahr 1993 wurden die Neubauten, die Türme A und B errichtet. Das Gebäudeensemble wurde in den letzten Jahren aufwendig saniert. Der Altbaubereich des Gebäude-Ensembles steht unter Baudenkmalschutz. Der Neubaubereich zeichnet sich durch vielfältige Nutzungsmöglichkeiten aus. Ebenso verfügt das Ullsteinhaus über einen 24Stunden-Wachschutz und eine Außenvideoüberwachung.
Zertifizierungen
Energieausweis
Für diese Liegenschaft liegt ein Verbrauchsausweis vom 2014-04-30 vom Eigentümer/Vermieter vor. Der wesentliche Energieträger der Liegenschaft ist Öl. Der Endenergieverbrauch Strom beträgt 92.00 kWh/(m²*a). Der Endenergieverbrauch Wärme beträgt 83.00 kWh/(m²*a).Verfügbare Fläche
Lage und Verkehrsanbindung
Das Objekt befindet sich in zentraler Lage in Tempelhof an der Hauptgeschäftsstraße Tempelhofer Damm, der in den Mariendorfer Damm übergeht. Das Einkaufszentrum Tempelhofer Hafen mit seinen zahlreichen Angeboten des täglichen Bedarfs ist in unmittelbarer Nähe gelegen.
- Flughafen, Berlin Brandenburg, Fahrzeit: 20 min
- Bundesautobahn, A 100, Fahrzeit: 10 min
- Bundesautobahn, A 113, Fahrzeit: 10 min
- Bus, Volkmarstr./Ullsteinstr.; Linie 170, Gehzeit: 4 min
- U-Bahn, Ullsteinstraße; Linie U6, Gehzeit: 1 min
- Hauptbahnhof, Berlin, Fahrzeit: 20 min
Ihr Kontakt

Tobias Rodewald
Ihr Kontakt
Marktinformationen
Mietmarkt
Tempelhof, Berlin
siehe 3 passende MietobjekteErfahren Sie mehr
* Durchschnittspreis auf Grundlage historischer Transaktionen.











