Büros
ID B0122Provisionsfrei
Büroimmobilie - Berlin, Mitte - B0122
Mitte, 10117, Berlin, Berlin
31 € / m²
- Fläche366 m²
- VerfügbarkeitSeptember 2026
- Objekt
- Ausstattung
- Lage und Verkehrsanbindung
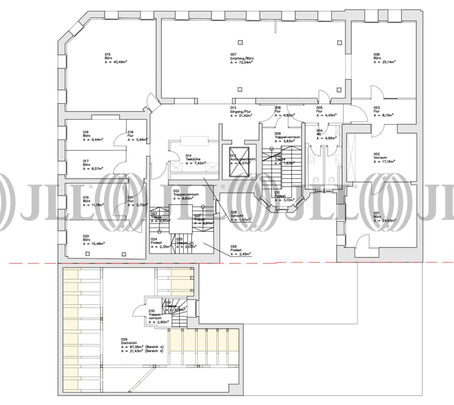
- Grundriss
- Exposé herunterladen
- Ihr Kontakt
- Anfrage senden
Objekt
Bei dem Objekt handelt es sich um ein aufwendig restauriertes Altbaugebäude mit denkmalgeschützter Fassade und einem liebevoll restaurierten historischen Treppenhaus. Das Dach wurde um zwei Geschosse (5. und 6. OG) in Stahlbauweise aufgestockt. Das Objekt zeichnet sich durch einen modernen Bürostandard.
Zertifizierungen
Energieausweis
Für diese Liegenschaft liegt ein Verbrauchsausweis vom 28.04.2014 vom Eigentümer/Vermieter vor. Der wesentliche Energieträger der Liegenschaft ist Fernwärme. Der Endenergieverbrauch Strom beträgt 6.00 kWh/(m²*a). Der Endenergieverbrauch Wärme beträgt 98.00 kWh/(m²*a).Verfügbare Fläche
Lage und Verkehrsanbindung
Das Objekt befindet sich in einer der attraktivsten Lagen Berlins. Eine Vielzahl von namhaften Hotels und Restaurants befinden sich in direkter Nähe zum Gebäude. Sämtliche Anbieter des täglichen Bedarfs liegen in fußläufiger Entfernung.
- Hauptbahnhof, Berlin, Fern- und Regionalzüge, div. Linien, Fahrzeit: 7 min
- S-Bahn, Friedrichstraße, Linie S1, S3, S9, S25, S26, Gehzeit: 10 min
- Bus, Französische Straße, Linie 147, Gehzeit: 1 min
- Flughafen, Berlin Brandenburg, Fahrzeit: 25 min
Ihr Kontakt

Tobias Rodewald
Ihr Kontakt
Marktinformationen
Mietmarkt
Mitte, Berlin
Gew. Ø-Miete
31 € / m²
siehe 177 passende MietobjekteErfahren Sie mehr* Durchschnittspreis auf Grundlage historischer Transaktionen.

