Büros
ID B0119Provisionsfrei
Büroimmobilie - Berlin, Schmargendorf - B0119
Schmargendorf, 14199, Berlin, Berlin
Kontaktieren Sie uns für den Preis
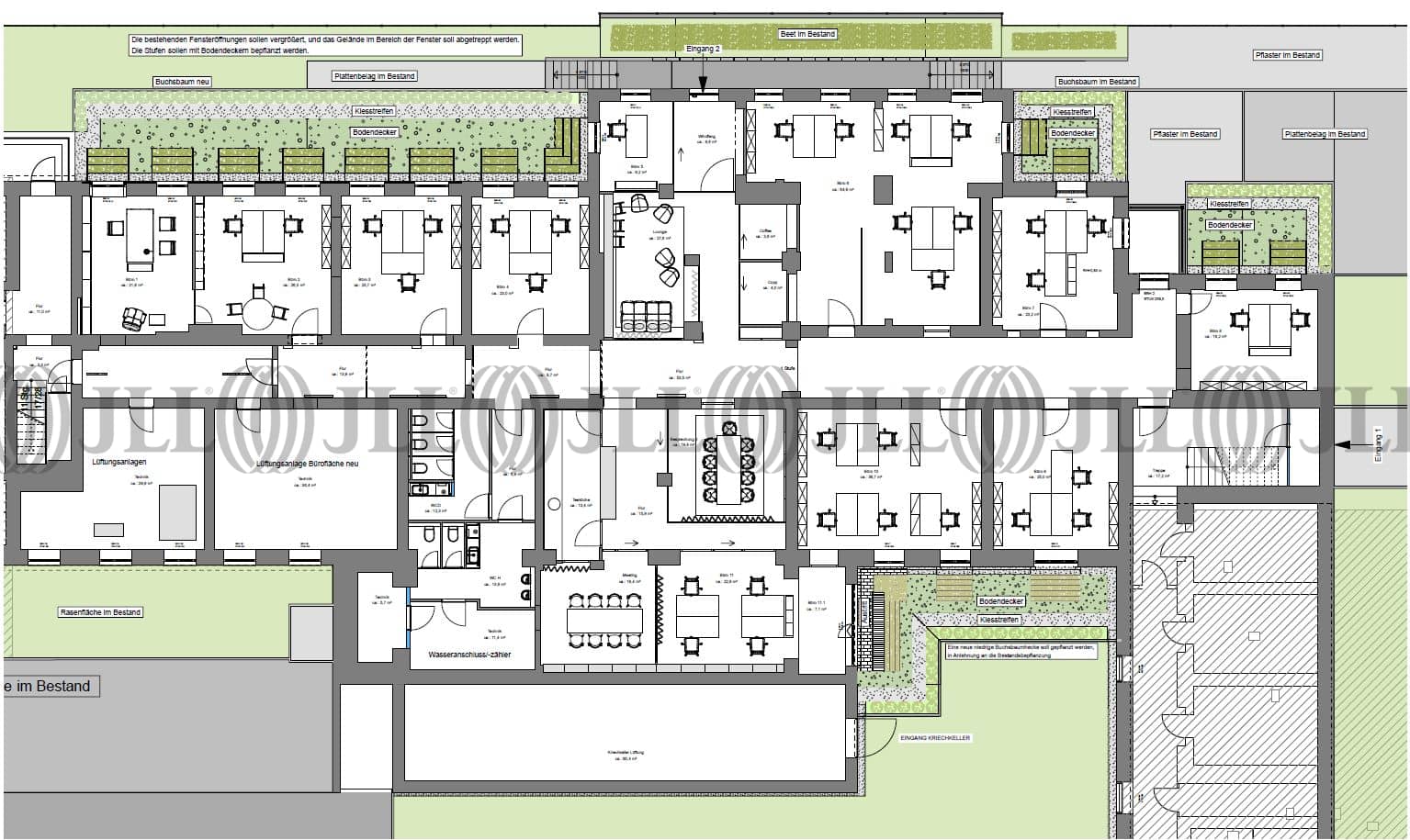
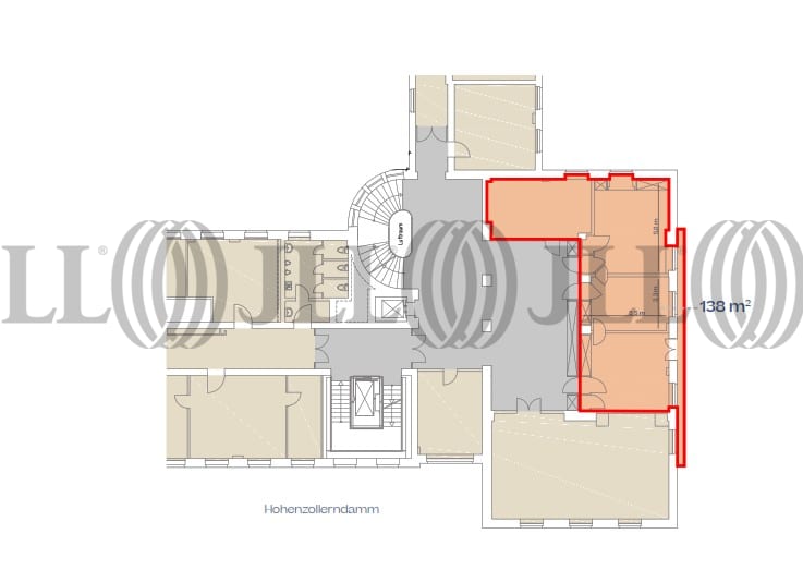
- Fläche257 - 5.015 m²
- VerfügbarkeitSofort
- Objekt
- Ausstattung
- Lage und Verkehrsanbindung
- Grundrisse
- Exposé herunterladen
- Ihr Kontakt
- Anfrage senden
Objekt
Der Hohenzollern Campus wurde in den Jahren 1936/37 als klassischer Verwaltungsbau errichtet und aufgrund seiner räumlichen Eignung auch für Bildungszwecke genutzt.
Zertifizierungen
Energieausweis
Für diese Liegenschaft liegt ein Verbrauchsausweis vom 11.10.2011 vom Eigentümer/Vermieter vor. Der wesentliche Energieträger der Liegenschaft ist Fernwärme. Der Endenergieverbrauch Strom beträgt 6.80 kWh/(m²*a). Der Endenergieverbrauch Wärme beträgt 95.30 kWh/(m²*a).Verfügbare Fläche
Lage und Verkehrsanbindung
Das Gesamtareal befindet sich im Berliner Stadtteil Wilmersdorf direkt am Hohenzollerndamm. Über die Berliner Stadtautobahn ist eine hervorragende Erreichbarkeit sämtlicher Berliner Stadtbezirke gewährleistet. Einkaufsmöglichkeiten des täglichen Bedarfs befinden sich im unmittelbaren Umfeld.
- S-Bahn, Hohenzollerndamm, Linien S41, S42, S45, S46, S47, Gehzeit: 6 min
- Bus, Warmbrunner Straße, Linie 115, Gehzeit: 2 min
- Bundesautobahn, A 100, Fahrzeit: 2 min
- Bundesautobahn, A115, Fahrzeit: 4 min
- Flughafen, Berlin Brandenburg, Fahrzeit: 22 min
Ihr Kontakt

Alexandra Teich
Ihr Kontakt







