Büros
ID B0116Provisionsfrei
Büroimmobilie - Berlin, Tegel - B0116
Tegel, 13509, Berlin, Berlin
7 € / m²
- Fläche214 - 17.730 m²
- VerfügbarkeitSofort
- Objekt
- Ausstattung
- Lage und Verkehrsanbindung
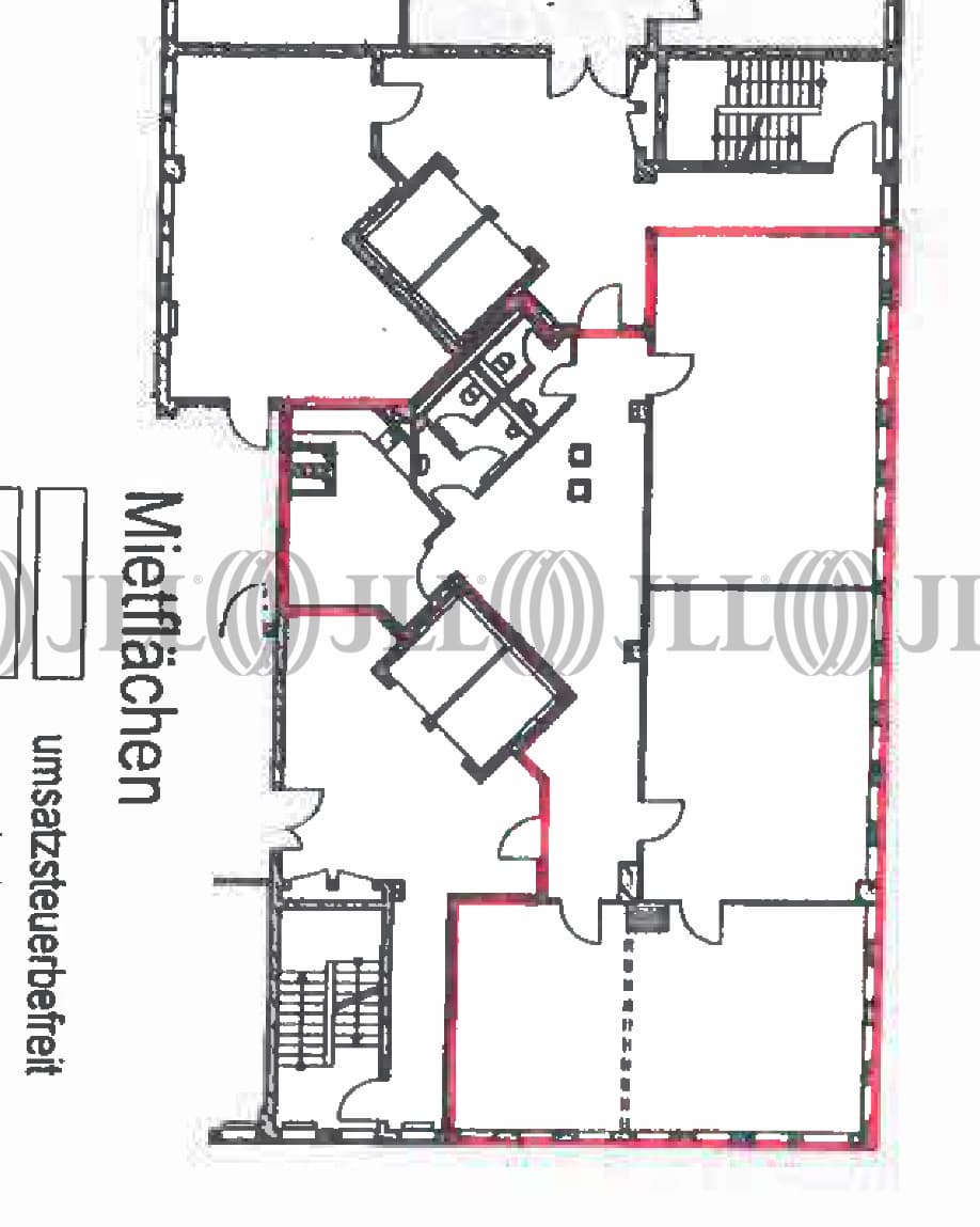
- Grundrisse
- Exposé herunterladen
- Ihr Kontakt
- Anfrage senden
Objekt
Das Areal besteht aus insgesamt 14 Gebäuden. Jedes Gebäude hat seine eigene Form und besondere Gestaltung der Fassade. Im Zentrum des Top Tegel befindet sich eine Glashalle mit Cafe, Bistro und Läden.
Zertifizierungen
Energieausweis
WIREDSCORE: CertifiedFür diese Liegenschaft liegt ein Bedarfsausweis vom 31.03.2010 vom Eigentümer/Vermieter vor. Die wesentlichen Energieträger der Liegenschaft sind Heizwerk, fossil, Strom. Endenergiebedarf: 133.10 kWh/(m²*a)
Verfügbare Fläche
Lage und Verkehrsanbindung
Das Objekt befindet sich im Bezirk Reinickendorf in unmittelbarer Nähe der ehemaligen Borsigwerke. Die Stadtautobahn ist in wenigen Minuten erreichbar. Restaurants und Einkaufsmöglichkeiten des täglichen Bedarfs befinden sich in der Nähe, wie zum Beispiel im Shopping Center Hallen am Borsigturm.
- Hauptbahnhof, Berlin, Fahrzeit: 20 min
- U-Bahn, Borsigwerke; Linie U6, Gehzeit: 3 min
- Bus, Namslaustraße; Linien 133, X33, Gehzeit: 5 min
- Bundesautobahn, A 100, Fahrzeit: 25 min
- Flughafen, Berlin Brandenburg, Fahrzeit: 40 min
Ihr Kontakt

Alexandra Teich
Ihr Kontakt




