Büros
ID B0103Provisionsfrei
Aktualisiert
Büroimmobilie - Berlin, Charlottenburg - B0103
Charlottenburg, 10587, Berlin, Berlin
16,50 € / m²
- Fläche250 - 8.501 m²
- VerfügbarkeitJanuar 2026
- Objekt
- Ausstattung
- Lage und Verkehrsanbindung
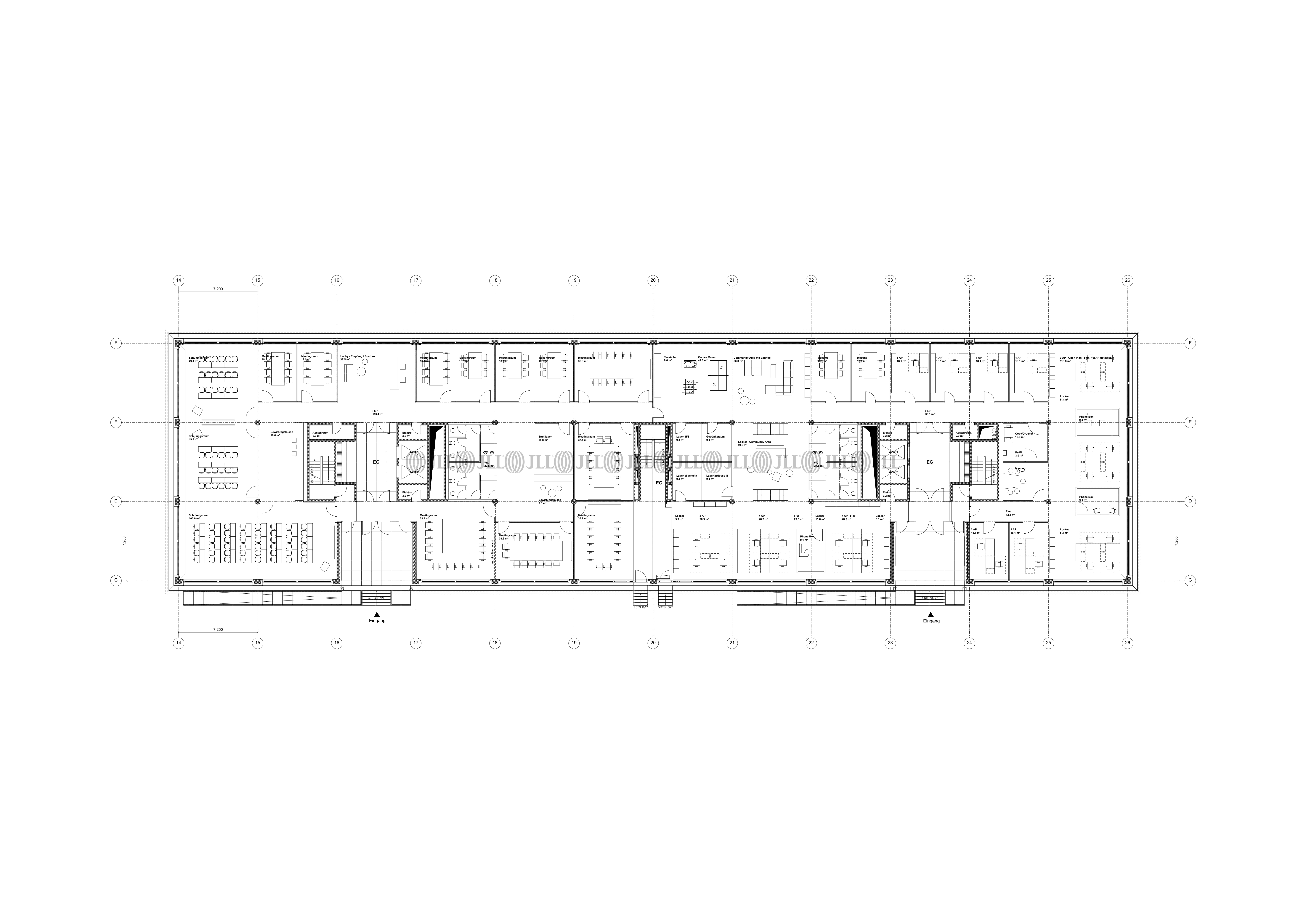
- Grundriss
- Exposé herunterladen
- Ihr Kontakt
- Anfrage senden
Objekt
Das 6-geschossige Bürohaus liegt direkt an der Spree, wodurch 60 % der Büroräume über einen Spreeblick verfügen. Das Gebäude wird über zwei Hauseingänge mit je zwei Aufzügen erschlossen, die hauseigene Tiefgarage ist direkt von den Büroetagen zu erreichen.
Verfügbare Fläche
Lage und Verkehrsanbindung
- Flughafen, Berlin Brandenburg, Fahrzeit: 40 min
- Bundesautobahn, A 100, Fahrzeit: 13 min
- Bundesautobahn, A 115, Fahrzeit: 13 min
- Bus, Helmholtzstraße; Linien 101, 245, Gehzeit: 6 min
- U-Bahn, Turmstraße; Linie U9, Gehzeit: 20 min
- Hauptbahnhof, Berlin, Fahrzeit: 12 min
Ihr Kontakt

Gerald Dietzold
Ihr Kontakt
Marktinformationen
Mietmarkt
Charlottenburg, Berlin
Gew. Ø-Miete
16,50 € / m²
siehe 98 passende MietobjekteErfahren Sie mehr* Durchschnittspreis auf Grundlage historischer Transaktionen.

















