Büros
ID B0097Provisionsfrei
Aktualisiert
Büroimmobilie - Berlin, Mitte - B0097
Mitte, 10117, Berlin, Berlin
35 € / m²
- Fläche305 - 1.199 m²
- VerfügbarkeitSofort
- Objekt
- Ausstattung
- Lage und Verkehrsanbindung
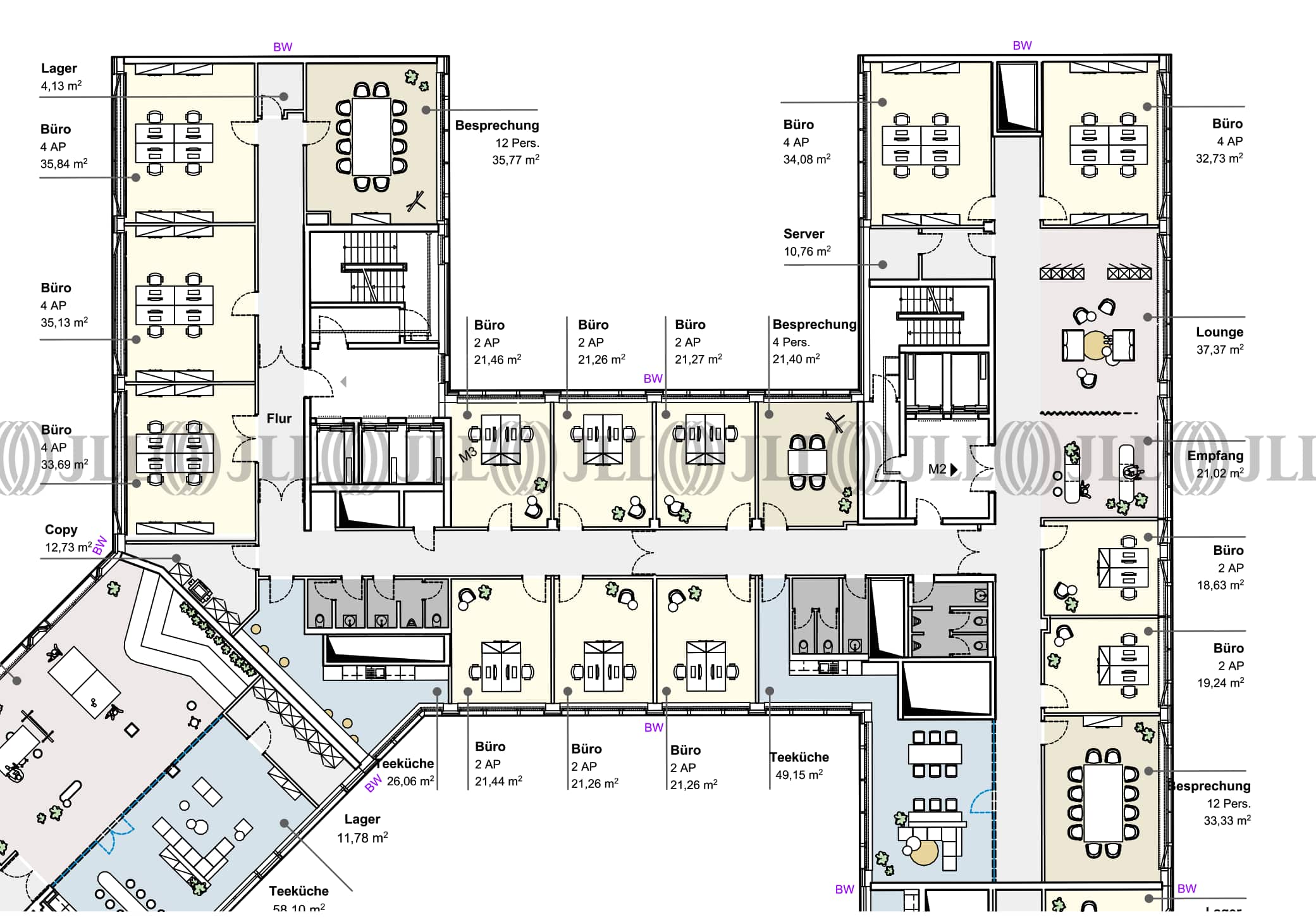
- Grundrisse
- Exposé herunterladen
- Ihr Kontakt
- Anfrage senden
Zertifizierungen
Energieausweis
BREEAM: ExcellentFür diese Liegenschaft liegt ein Verbrauchsausweis vom 30.06.2023 vom Eigentümer/Vermieter vor. Der wesentliche Energieträger der Liegenschaft ist Fernwärme. Der Endenergieverbrauch Strom beträgt 88.00 kWh/(m²*a). Der Endenergieverbrauch Wärme beträgt 119.00 kWh/(m²*a).
Verfügbare Fläche
Lage und Verkehrsanbindung
Das Objekt befindet sich an einem der exponiertesten Standorte der Stadt. Das Brandenburger Tor, der Reichstag und das Bundeskanzleramt sind innerhalb kürzester Zeit fußläufig zu erreichen. Die Friedrichstraße mit dem Gendarmenmarkt wie auch der Kurfürstendamm befinden sich nur fünf Bahnminuten entfernt.
- Flughafen, Berlin Brandenburg, Fahrzeit: 40 min
- Bundesautobahn, A 100, Fahrzeit: 20 min
- Bus, Potsdamer Platz, Linien 200, M48, Gehzeit: 2 min
- Hauptbahnhof, Berlin, Fahrzeit: 7 min
- S-Bahn, Potsdamer Platz, Linie S 1, S2, S25, Gehzeit: 2 min
Ihr Kontakt

Tobias Rodewald
Ihr Kontakt
Marktinformationen
Mietmarkt
Mitte, Berlin
Gew. Ø-Miete
35 € / m²
siehe 155 passende MietobjekteErfahren Sie mehr* Durchschnittspreis auf Grundlage historischer Transaktionen.










