Büros
ID B0081Provisionsfrei
Büroimmobilie - Berlin, Friedrichshain - B0081
Friedrichshain, 10243, Berlin, Berlin
22,50 € / m²
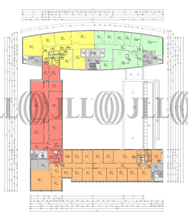
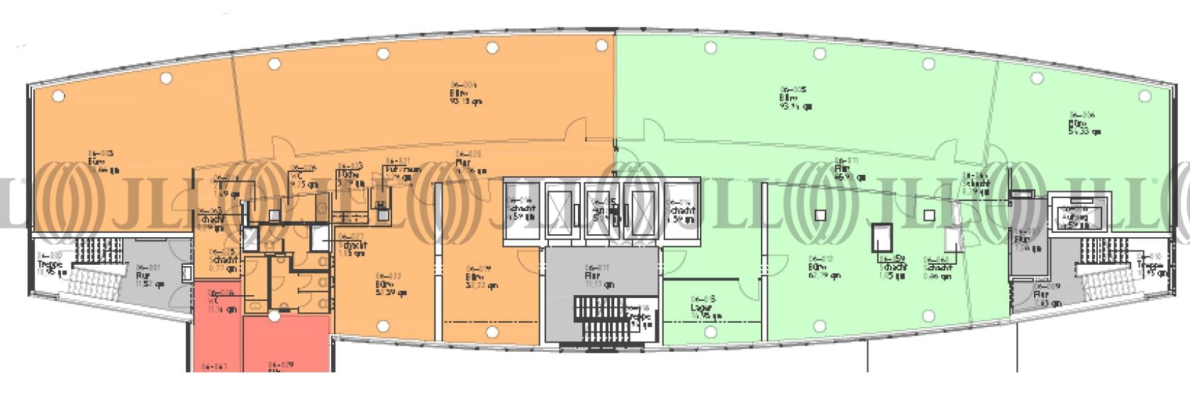
- Fläche424 - 3.700 m²
- VerfügbarkeitSofort
- Objekt
- Ausstattung
- Lage und Verkehrsanbindung
- Grundrisse
- Exposé herunterladen
- Ihr Kontakt
- Anfrage senden
Zertifizierungen
Energieausweis
DGNB: GoldFür diese Liegenschaft liegt ein Bedarfsausweis vom 2010-05-07 vom Eigentümer/Vermieter vor. Die wesentlichen Energieträger der Liegenschaft sind KWK,Strom. Endenergiebedarf: 149.40000 kWh/(m²*a).
Verfügbare Fläche
Lage und Verkehrsanbindung
Das Gebäude befindet sich in verkehrsgünstiger Lage im Bezirk Friedrichshain. Entlang der Karl-Marx-Allee und Frankfurter Allee befinden sich zahlreiche Einkaufsmöglichkeiten des täglichen Bedarfs und gastronomische Einrichtungen.
- Hauptbahnhof, Berlin, Fahrzeit: 20 min
- U-Bahn, Weberwiese, Linie U5, Gehzeit: 3 min
- Bus, U-Bahnhof Weberwiese, Linie 347, Gehzeit: 3 min
- Bundesautobahn, A 100, Fahrzeit: 30 min
- Flughafen, Berlin Brandenburg, Fahrzeit: 30 min
Ihr Kontakt

Sophie Schröter
Ihr Kontakt
Marktinformationen
Mietmarkt
Friedrichshain, Berlin
siehe 51 passende MietobjekteErfahren Sie mehr
* Durchschnittspreis auf Grundlage historischer Transaktionen.







