Büros
ID B0070Provisionsfrei
Aktualisiert
Büroimmobilie - Berlin, Wilmersdorf - B0070
Wilmersdorf, 10707, Berlin, Berlin
25,50 € / m²
- Fläche280 - 4.958 m²
- VerfügbarkeitAuf Anfrage
- Objekt
- Ausstattung
- Lage und Verkehrsanbindung
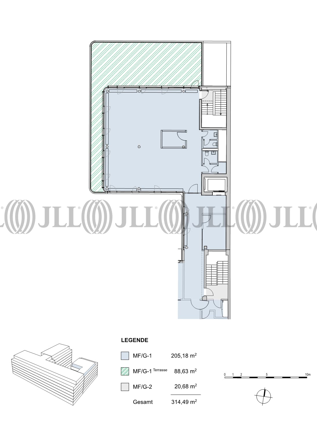
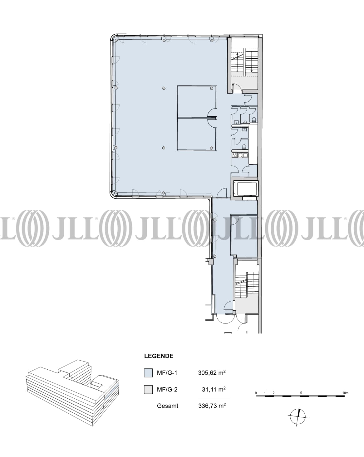
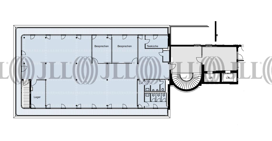
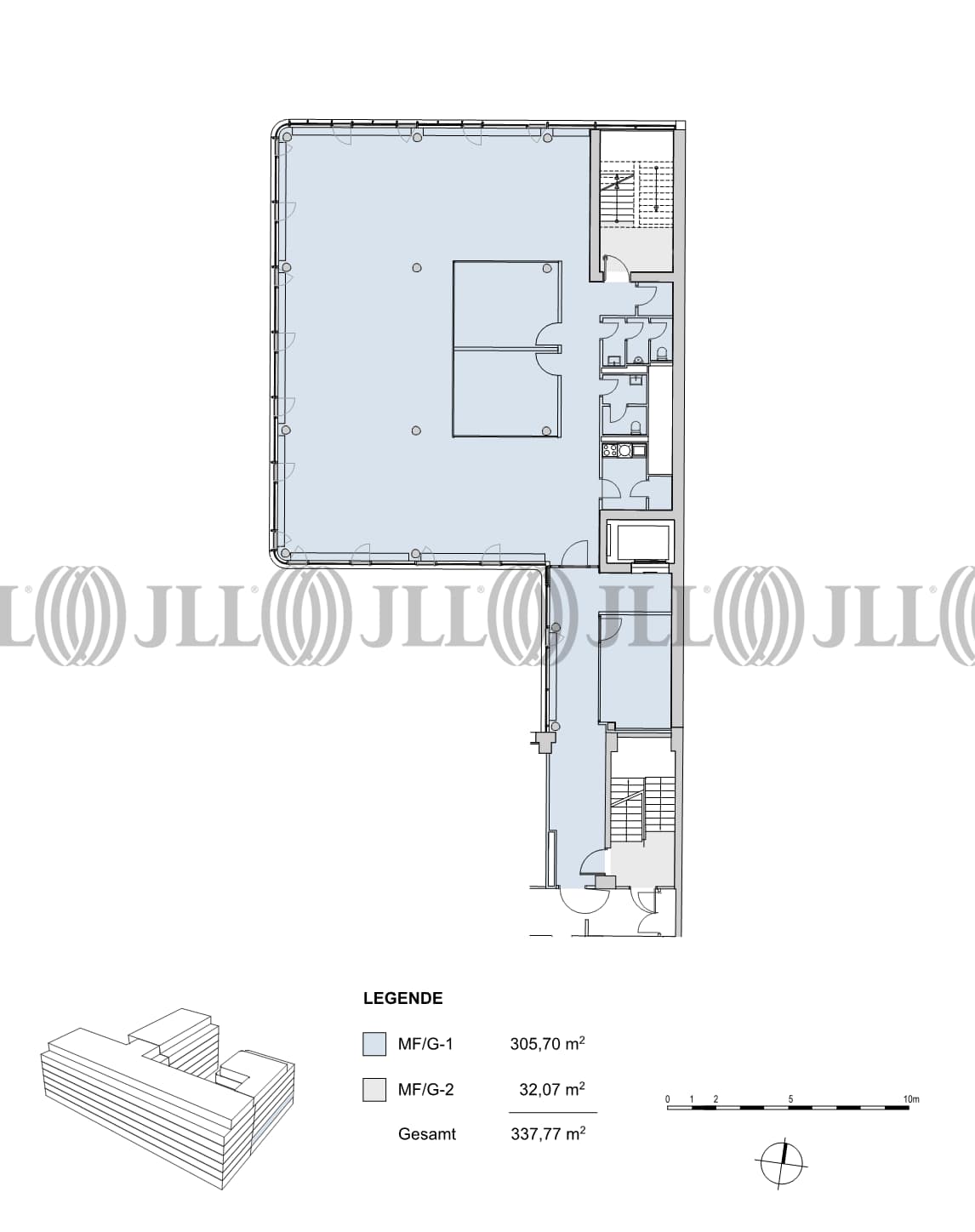
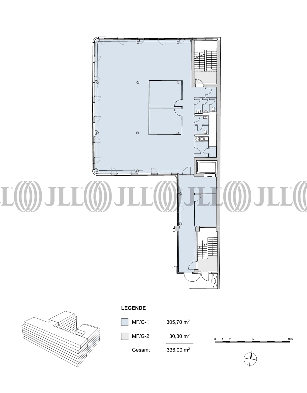
- Grundrisse
- Exposé herunterladen
- Ihr Kontakt
- Anfrage senden
Objekt
Der eindrucksvolle Gewerbebau wurde 1951 von den Architekten Hans Geber und Otto Risse errichtet, welche die Stadt Berlin durch mehrere bedeutende Bauwerke aus der Nachkriegsmoderne charakterisierten. Das als Bayer-Haus erbaute Gebäudeensemble war zu seiner Entstehungszeit eines der ersten Neubauten in West-Berlin und genoss damit größere Bekanntheit. Die schlicht gehaltene Bauweise mit einer Fassade aus Muschelkalkstein hat dem Baudenkmal einen ganz eigenen Charakter verliehen. Nachdem das Gebäude ursprünglich zu Wohn- und Geschäftszwecken der Chemie-Firma Bayer genutzt wurde, befinden sich mittlerweile Büromieter unterschiedlichster Firmen und Einzelhandels-Marken wie Max Mara, Maria Rinaldi oder Boffiin in den Flächen.
Verfügbare Fläche
Lage und Verkehrsanbindung
Das Objekt liegt südlich des Kurfürstendamms direkt am Olivaer Platz und genießt damit eine optimale Lage. In der von prachtvollen Altbauten geprägten Umgebung sind viele Boutiquen und Restaurants ansässig. Hier existiert nicht nur ein wichtiger Bürostandort, sondern die Straße ist auch ein Aushängeschild für alle Luxusmarken. Diese nutzen den Ku’damm, um gesehen zu werden und die unzähligen Passanten anzulocken. Der beliebte Standort ist an das öffentliche Verkehrsnetz sehr gut angebunden, wodurch die Stadtautobahn A100 in weniger als 2 Kilometern mit dem Auto erreicht werden kann. Darüber hinaus befindet sich die Haltestelle der U7 nur 3 Gehminuten vom Bayer-Haus entfernt.
- Flughafen, Berlin Brandenburg, Fahrzeit: 35 min
- Bundesautobahn, A 100, Fahrzeit: 10 min
- Bus, U-Bahnhof Adenauerplatz; Linien M19, M29, X10, Gehzeit: 3 min
- U-Bahn, Adenauerplatz; Linie U7, Gehzeit: 3 min
- Hauptbahnhof, Berlin, Fahrzeit: 12 min
Ihr Kontakt

Tobias Rodewald
Ihr Kontakt
Marktinformationen
Mietmarkt
Wilmersdorf, Berlin
siehe 0 passende MietobjekteErfahren Sie mehr
* Durchschnittspreis auf Grundlage historischer Transaktionen.




