Büros
ID B0056Provisionsfrei
Büroimmobilie - Berlin, Charlottenburg - B0056
Charlottenburg, 10627, Berlin, Berlin
22 € - 25 € / m²
- Fläche300 - 8.437 m²
- VerfügbarkeitSofort
- Objekt
- Ausstattung
- Lage und Verkehrsanbindung
- Grundrisse
- Exposé herunterladen
- Ihr Kontakt
- Anfrage senden
Objekt
Die historische Backfabrik, ein einzigartiges Klinkergebäude mit 130 Jahren Geschichte, erstrahlt in neuem Glanz. In Berlin Charlottenburg entsteht ein innovativer Campus für Universitäten und Weiterbildungseinrichtungen, der den individuellen Entwicklungsraum erweitert. Die Räumlichkeiten des Campus Windscheidhof sind optimale Schulungsflächen. Die offene Bauweise, wenigen Säulen und helle Atmosphäre stellen eine ideale Umgebung für effektives Lernen und Arbeiten dar. Großzügige Räume ermöglichen Gruppenaktivitäten, Diskussionen und interaktive Lernmethoden.
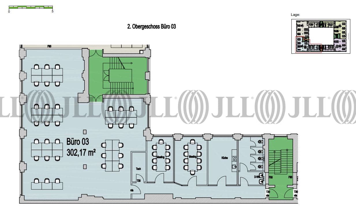
Verfügbare Fläche
Lage und Verkehrsanbindung
Die Lage des Campus Windscheidhof in Charlottenburg könnte nicht zentraler sein. In nur wenigen Gehminuten erreicht man den S-Bahnhof Charlottenburg. Von hier aus sind es nur 2 Stationen zum Zoologischen Garten und 5 zum Hauptbahnhof. In Pausenzeiten bietet die Winscheidstraße eine Vielzahl an preiswerten und abwechslungsreichen kulinarischen Möglichkeiten. Vom schnellen Burger gegenüber des Campus‘ bis hin zum italienischen Mittagstisch am Stuttgarter Platz. Dazu liegt der Campus inmitten einer der beliebtesten Wohngegenden Charlottenburgs. Der Kiez hat eine Anziehungskraft auf Familien und zieht auch internationales Publikum magisch an. Erholung bietet ein Spaziergang um den idyllischen Lietzensee der gerade einmal 5 Gehminuten vom Campus entfernt liegt.
- Hauptbahnhof, Berlin, Fahrzeit: 15 min
- S-Bahn, Charlottenburg; Linien S3, S5, S7, S75, S9, Gehzeit: 7 min
- U-Bahn, Wilmersdorfer Straße; Linie U7, Gehzeit: 7 min
- Bus, S-Bahnhof Charlottenburg; Linien 109, 309, 310, Gehzeit: 5 min
- Bundesautobahn, A 100, Fahrzeit: 10 min
- Flughafen, Berlin Brandenburg, Fahrzeit: 25 min
Ihr Kontakt

Alexandra Teich
Ihr Kontakt
Marktinformationen
Mietmarkt
Charlottenburg, Berlin
Gew. Ø-Miete
22 € - 25 € / m²
siehe 101 passende MietobjekteErfahren Sie mehr* Durchschnittspreis auf Grundlage historischer Transaktionen.












