Büros
ID B0044Provisionsfrei
Aktualisiert
Büroimmobilie - Berlin, Charlottenburg - B0044
Charlottenburg, 10719, Berlin, Berlin
17,31 € / m²
- Fläche175 - 422 m²
- VerfügbarkeitSofort
- Objekt
- Ausstattung
- Lage und Verkehrsanbindung
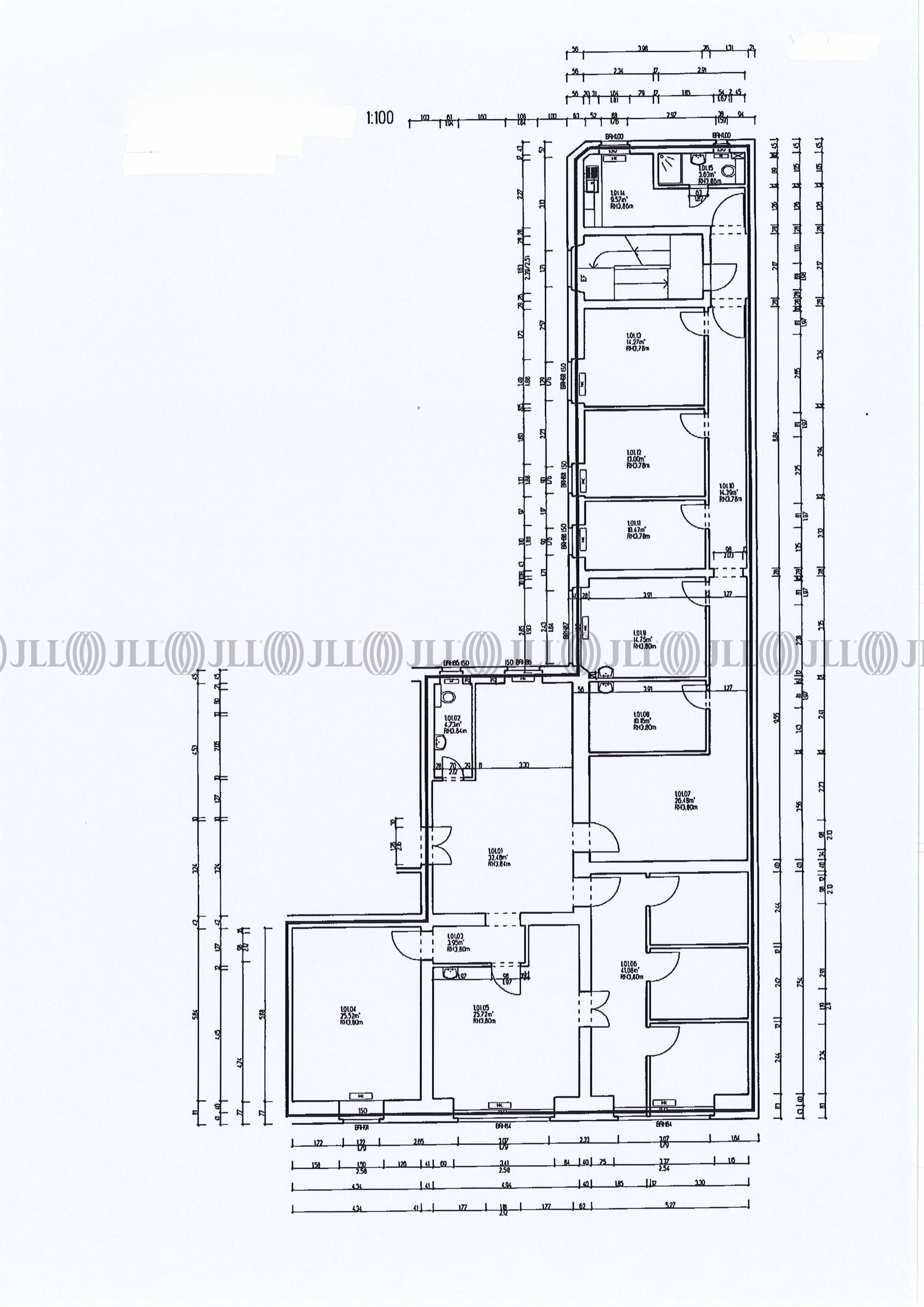
- Grundrisse
- Exposé herunterladen
- Ihr Kontakt
- Anfrage senden
Objekt
Bei dem Anwesen handelt es sich um eine repräsentative Gewerbeimmobilie, die sich nahtlos in die prachtvolle Bebauung der Umgebung einfügt. Das Gebäude beherbergt moderne und helle Flächen, die flexibel als Büros oder Praxen genutzt werden können.
Zertifizierungen
Energieausweis
Für diese Liegenschaft liegt ein Verbrauchsausweis vom 09.12.2015 vom Eigentümer/Vermieter vor. Die wesentlichen Energieträger der Liegenschaft sind Fernwärme, Nahwärme. Der Endenergieverbrauch Strom beträgt 65.00 kWh/(m²*a). Der Endenergieverbrauch Wärme beträgt 65.00 kWh/(m²*a).Verfügbare Fläche
Lage und Verkehrsanbindung
Das Objekt befindet sich im Bezirk Charlottenburg direkt am Kurfürstendamm, eine der bekanntesten Geschäftsadressen im Westteil von Berlin, welche alle Vorzüge einer zentralen Innenstadtlage bietet. Namhafte Einzelhändler, Anbieter des täglichen Bedarfs sowie gastronomische Einrichtungen säumen das Umfeld. Dienstleister des täglichen Bedarfs befinden sich in der Nähe.
- Flughafen, Berlin Brandenburg, Fahrzeit: 35 min
- Bundesautobahn, A 100, Fahrzeit: 15 min
- Bundesautobahn, A 113, Fahrzeit: 20 min
- Bus, Bleibtreustraße, Linien 109, 110, M19, M29, Gehzeit: 1 min
- Hauptbahnhof, Berlin, Fahrzeit: 10 min
- U-Bahn, Uhlandstraße, Linie U1, Gehzeit: 5 min
Ihr Kontakt

Alexandra Teich
Ihr Kontakt
Marktinformationen
Mietmarkt
Charlottenburg, Berlin
Gew. Ø-Miete
17,31 € / m²
siehe 99 passende MietobjekteErfahren Sie mehr* Durchschnittspreis auf Grundlage historischer Transaktionen.






