
Büros
ID B0038Provisionsfrei
Aktualisiert
Büroimmobilie - Berlin, Gesundbrunnen - B0038
Gesundbrunnen, 13357, Berlin, Berlin
Kontaktieren Sie uns für den Preis
- Fläche172 - 672 m²
- VerfügbarkeitSofort
- Objekt
- Ausstattung
- Lage und Verkehrsanbindung
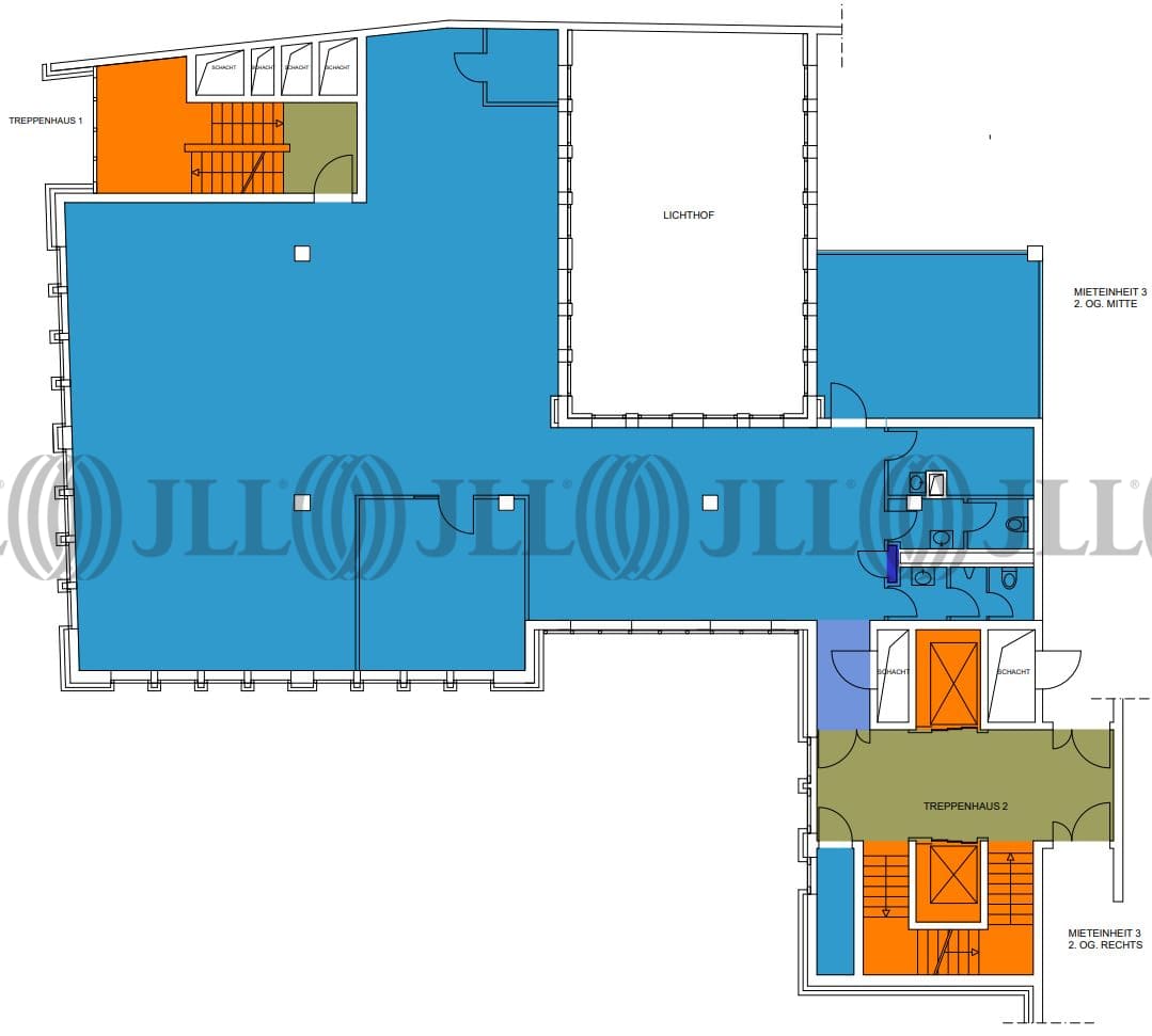
- Grundriss
- Exposé herunterladen
- Ihr Kontakt
- Anfrage senden
Zertifizierungen
Energieausweis
Für diese Liegenschaft liegt ein Verbrauchsausweis vom 08.05.2015 vom Eigentümer/Vermieter vor. Der wesentliche Energieträger der Liegenschaft ist Erdgas schwer. Der Endenergieverbrauch Strom beträgt 103.90 kWh/(m²*a). Der Endenergieverbrauch Wärme beträgt 105.10 kWh/(m²*a).Verfügbare Fläche
Lage und Verkehrsanbindung
Das Objekt befindet sich im Berliner Bezirk Wedding, sehr zentral am Kreuzpunkt der beiden Hauptverkehrsachsen Prinzenallee und Badstraße. Einkaufsmöglichkeiten des täglichen Bedarfs und gastronomische Einrichtungen befinden sich in unmittelbarer Nähe sowie im benachbarten Gesundbrunnen-Center.
- Flughafen, Berlin Brandenburg, Fahrzeit: 30 min
- Bundesautobahn, A 100, Fahrzeit: 10 min
- Bus, U-Bahnhof Pankstraße, Linie M27, Gehzeit: 2 min
- U-Bahn, U-Bahnhof Pankstraße, Linie U8, Gehzeit: 2 min
- Hauptbahnhof, Berlin, Fahrzeit: 10 min
Ihr Kontakt

Alexandra Teich
Ihr Kontakt