Büros
ID B0037Provisionsfrei
Büroimmobilie - Berlin, Wilmersdorf - B0037
Wilmersdorf, 10777, Berlin, Berlin
26 € / m²
- Fläche466 m²
- Verfügbarkeit3 Monate ab Vertragsunterzeichnung
- Objekt
- Ausstattung
- Lage und Verkehrsanbindung
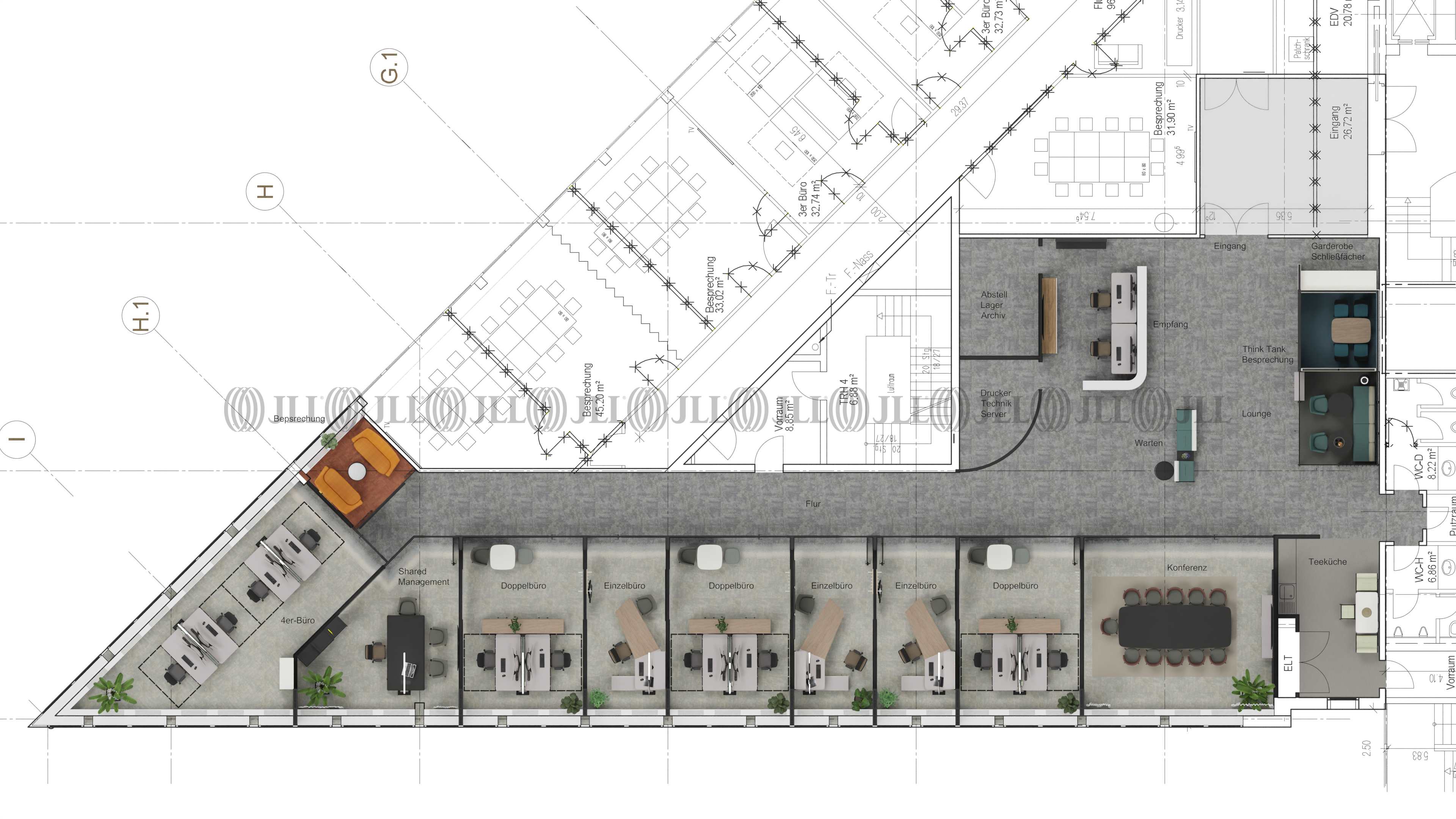
- Grundrisse
- Exposé herunterladen
- Ihr Kontakt
- Anfrage senden
Zertifizierungen
Energieausweis
WIREDSCORE: SilverFür diese Liegenschaft liegt ein Verbrauchsausweis vom 14.10.2016 vom Eigentümer/Vermieter vor. Die wesentlichen Energieträger der Liegenschaft sind Fernwärme, Strom. Der Endenergieverbrauch Strom beträgt 65.5 kWh/(m²*a). Der Endenergieverbrauch Wärme beträgt 82.0 kWh/(m²*a).
Verfügbare Fläche
Lage und Verkehrsanbindung
Das Objekt befindet sich in der City-West, in der Nähe vom Kurfürstendamm und hat eine hervorragende Anbindung an den öffentlichen Nahverkehr.
- Hauptbahnhof, Berlin, Fahrzeit: 15 min
- U-Bahn, Spichernstraße; Linien U1, U2, U3, U9, Gehzeit: 3 min
- Bus, U-Bahnhof Spichernstraße; Linie 204, Gehzeit: 3 min
- Bundesautobahn, A 100, Fahrzeit: 15 min
- Bundesautobahn, A 113, Fahrzeit: 20 min
- Flughafen, Berlin Brandenburg, Fahrzeit: 25 min
Ihr Kontakt

Alexandra Teich
Ihr Kontakt
Marktinformationen
Mietmarkt
Wilmersdorf, Berlin
siehe 0 passende MietobjekteErfahren Sie mehr
* Durchschnittspreis auf Grundlage historischer Transaktionen.






