Büros
ID B0029Provisionsfrei
Aktualisiert
Büroimmobilie - Berlin, Mitte - B0029
Mitte, 10117, Berlin, Berlin
33 € / m²
- Fläche234 - 1.850 m²
- VerfügbarkeitSofort
- Objekt
- Ausstattung
- Lage und Verkehrsanbindung
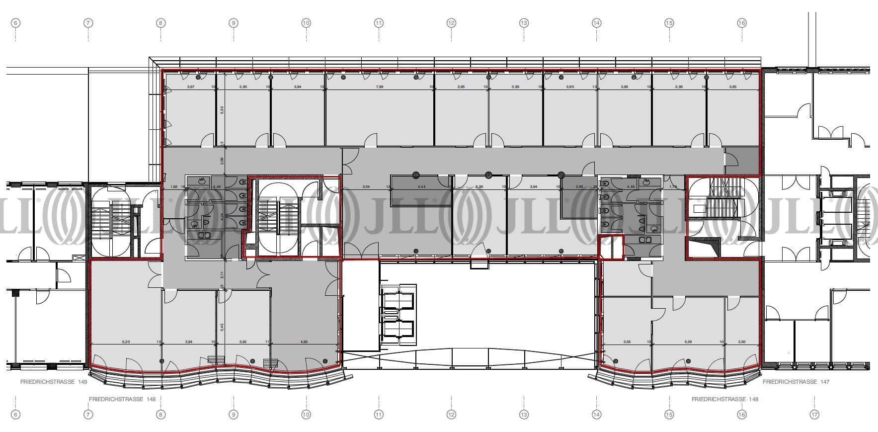
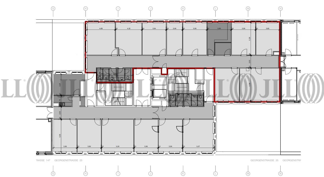
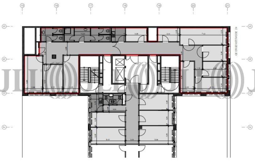
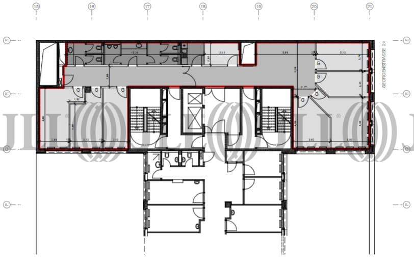
- Grundrisse
- Exposé herunterladen
- Ihr Kontakt
- Anfrage senden
Objekt
Das Objekt verfügt über eine Gemeinschaftsterrasse im Erdgeschoss.
Zertifizierungen
Energieausweis
BREEAM: GoodFür diese Liegenschaft liegt ein Verbrauchsausweis vom 26.08.2015 vom Eigentümer/Vermieter vor. Die wesentlichen Energieträger der Liegenschaft sind Fernwärme, Nahwärme, Strom. Der Endenergieverbrauch Strom beträgt 129.00 kWh/(m²*a). Der Endenergieverbrauch Wärme beträgt 96.00 kWh/(m²*a).
Verfügbare Fläche
Lage und Verkehrsanbindung
Ausgezeichnet durch die exklusive 1a-Lage befindet sich das Objekt an der renommierten Geschäftsadresse Friedrichstraße im Herzen Berlins. Der Standort ist hervorragend an das regionale und überregionale Verkehrsnetz der Stadt angebunden. Die Fernbahnhöfe und Flughäfen sind von hier aus schnell und bequem zu erreichen.
- Hauptbahnhof, Berlin, Fahrzeit: 5 min
- S-Bahn, Friedrichstraße; Linie S1, S2, S5, S7, S25, S75, Gehzeit: 1 min
- U-Bahn, Friedrichstraße; Linie U6, Gehzeit: 1 min
- Bus, S- & U-Bahnhof Friedrichstraße; Linien 12, 147, Gehzeit: 1 min
- Bundesautobahn, A 100, Fahrzeit: 20 min
- Bundesautobahn, A 113, Fahrzeit: 25 min
- Flughafen, Berlin Brandenburg, Fahrzeit: 35 min
Ihr Kontakt

Tobias Rodewald
Ihr Kontakt
Marktinformationen
Mietmarkt
Mitte, Berlin
Gew. Ø-Miete
33 € / m²
siehe 176 passende MietobjekteErfahren Sie mehr* Durchschnittspreis auf Grundlage historischer Transaktionen.




