Büros
ID B0022Büroimmobilie - Berlin, Mitte - B0022
Mitte, 10117, Berlin, Berlin
Provisionspflichtig: bei Anmietung 3 Netto-Monatsmieten zzgl. gesetzlicher Umsatzsteuer.** der Wert kann je nach Vertragslaufzeit variieren.
26 € / m²
- Fläche282 m²
- VerfügbarkeitSofort
- Objekt
- Ausstattung
- Lage und Verkehrsanbindung
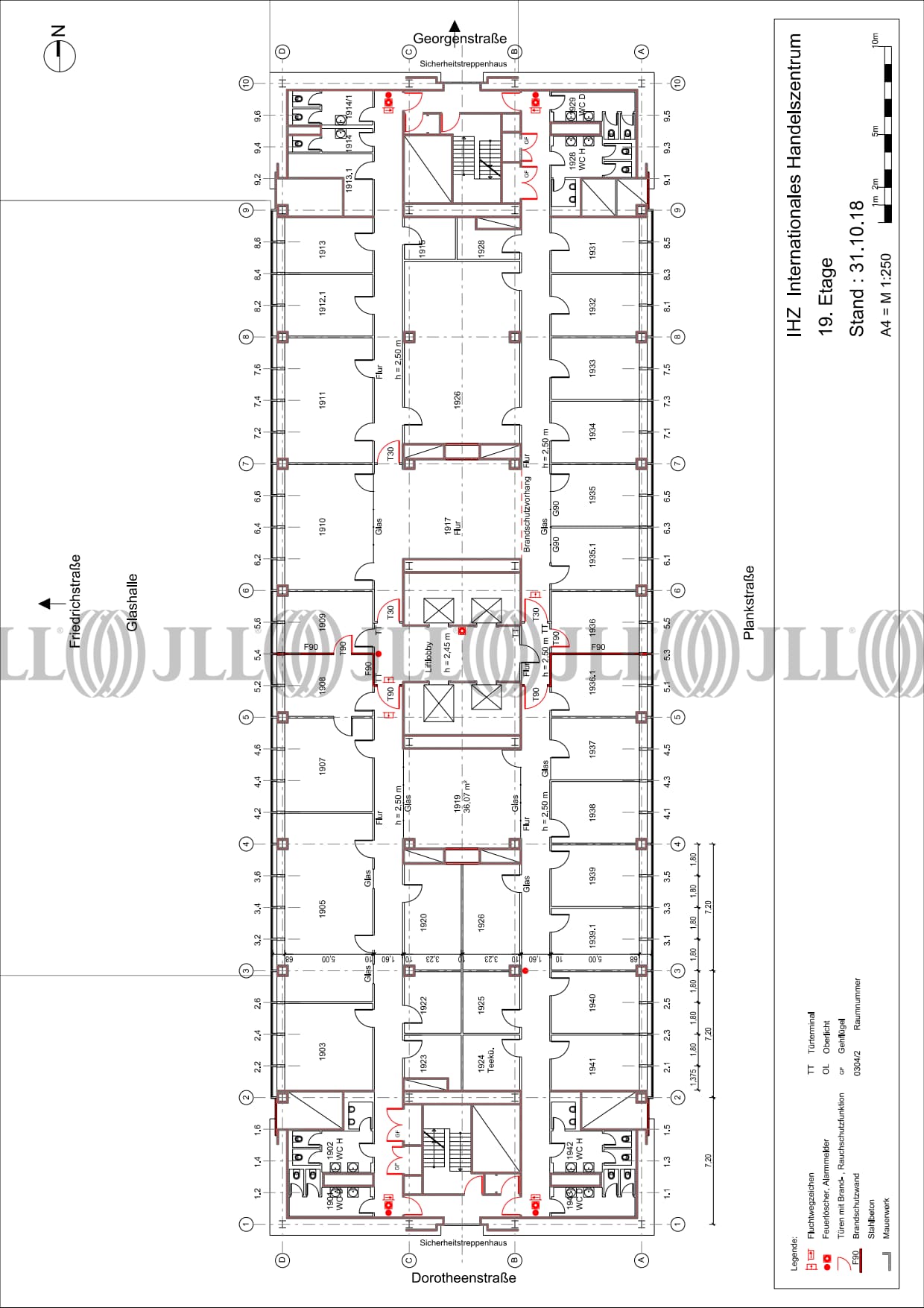
- Grundriss
- Exposé herunterladen
- Ihr Kontakt
- Anfrage senden
Objekt
Das markante Hochhaus aus den späten 1970er Jahren prägt mit seiner Höhe von über 90 Metern und 25 Etagen die Silhouette der Umgebung. Seine Architektur zeichnet sich durch eine auffällige Fassade mit zwei großflächigen, dunklen Fensterfronten aus, die von einem hellen, fensterlosen Rahmen eingefasst sind und dem Gebäude sein unverwechselbares Aussehen verleihen. Um die Jahrtausendwende wurde der ursprüngliche Bau durch zwei neungeschossige moderne Gebäude ergänzt, die über eine gläserne Halle mit dem Turm verbunden sind und einen öffentlichen Platz mit Einzelhandels- und Gastronomieflächen schaffen. Dieser Komplex beherbergt heute neben hochwertigen Büroflächen auch ein Hotel und ein Parkhaus.
Zertifizierungen
Energieausweis
Für diese Liegenschaft liegt ein Bedarfsausweis vom 2009-06-11 vom Eigentümer/Vermieter vor. Die wesentlichen Energieträger der Liegenschaft sind Strom,Wärmelieferung. Endenergiebedarf: 241.50000 kWh/(m²*a).Verfügbare Fläche
Lage und Verkehrsanbindung
In einer der zentralsten Lagen der deutschen Hauptstadt gelegen, befindet sich das Gebäude an einem der bekanntesten Boulevards der Stadt, der eine wichtige Nord-Süd-Verkehrsachse bildet. Die unmittelbare Nachbarschaft ist geprägt von einer Vielzahl an Ministerien, Botschaften, Verbands- und Unternehmensrepräsentanzen sowie kulturellen Sehenswürdigkeiten wie dem Brandenburger Tor und dem Gendarmenmarkt. Das pulsierende Umfeld bietet zudem eine hohe Dichte an gehobenem Einzelhandel, vielfältiger Gastronomie und renommierten Hotels.
- Hauptbahnhof, Berlin, Fahrzeit: 6 min
- S-Bahn, Friedrichstraße, Linien, S1, S2, S3, S5, S7, S9, Gehzeit: 1 min
- U-Bahn, Friedrichstraße, Linie U6, Gehzeit: 1 min
- Bus, S + U Friedrichstraße, Linie 147, Gehzeit: 2 min
- Bundesautobahn, A 100, Fahrzeit: 25 min
- Flughafen, Berlin Brandenburg, Fahrzeit: 40 min
Ihr Kontakt

Chiara Costa Jacinto
Ihr Kontakt
Marktinformationen
Mietmarkt
Mitte, Berlin
Gew. Ø-Miete
26 € / m²
siehe 176 passende MietobjekteErfahren Sie mehr* Durchschnittspreis auf Grundlage historischer Transaktionen.









