Büros
ID B0014Provisionsfrei
Büroimmobilie - Berlin, Mitte - B0014
Mitte, 10179, Berlin, Berlin
32 € / m²
- Fläche330 - 2.515 m²
- VerfügbarkeitSofort
- Objekt
- Ausstattung
- Lage und Verkehrsanbindung
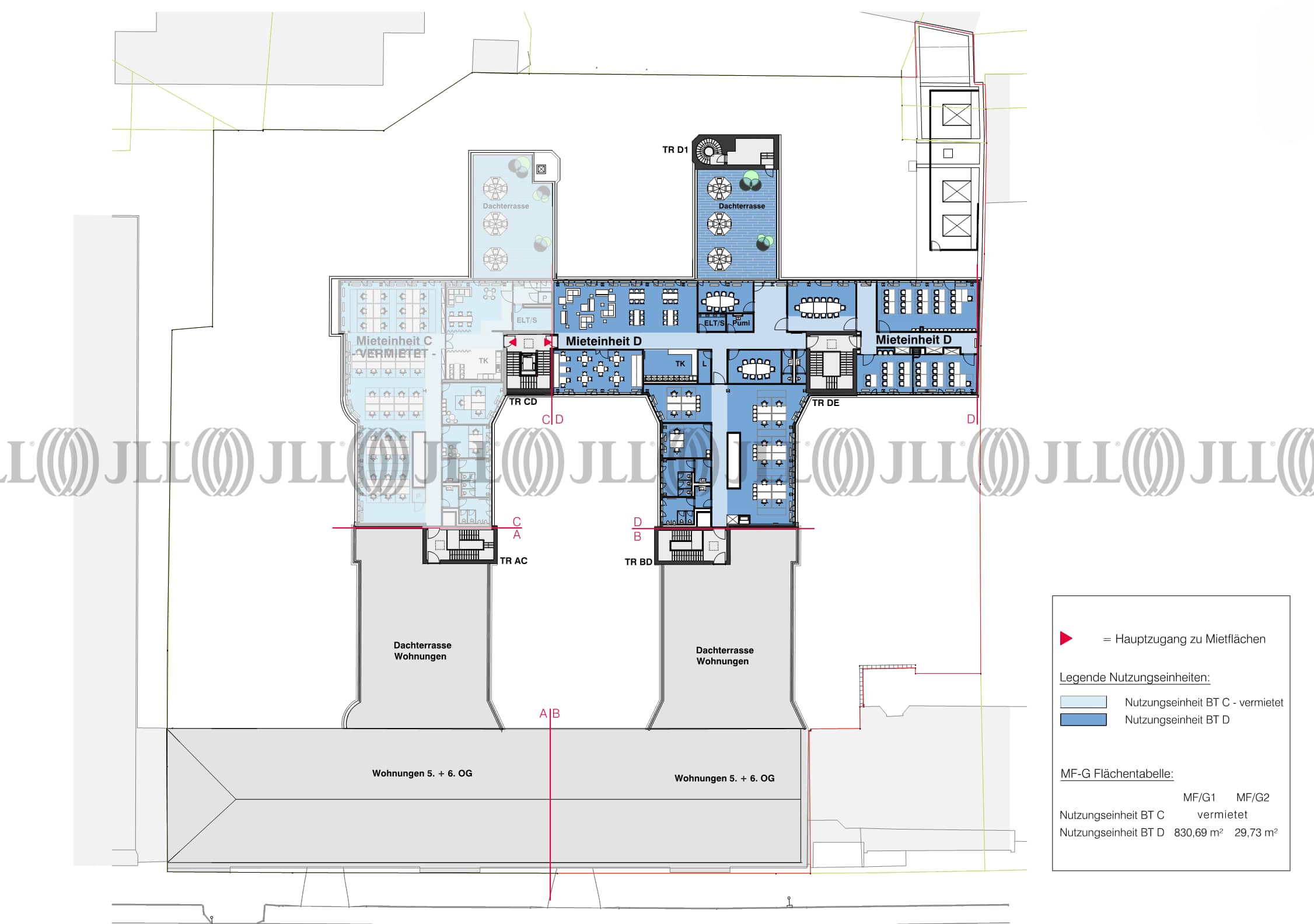
- Grundrisse
- Exposé herunterladen
- Ihr Kontakt
- Anfrage senden
Objekt
Der 5-geschossige Gebäudekomplex besteht aus einem Vorderhaus, zwei Mittelflügeln und anschließendem Quergebäude mit eigenen Mittelflügeln. Dazwischen befinden sich große, begrünte Innenhöfe. Alle Gebäudeteile und auch ein Teil der Hofflächen sind unterkellert.
Zertifizierungen
Energieausweis
Für diese Liegenschaft liegt ein Verbrauchsausweis vom 08.08.2020 vom Eigentümer/Vermieter vor. Die wesentlichen Energieträger der Liegenschaft sind KWK, Strom. Der Endenergieverbrauch Strom beträgt 8.20 kWh/(m²*a). Der Endenergieverbrauch Wärme beträgt 65.50 kWh/(m²*a).Verfügbare Fläche
Lage und Verkehrsanbindung
- Hauptbahnhof, Berlin, Fahrzeit: 10 min
- U-Bahn, Spittelmarkt, Linie U2, Gehzeit: 1 min
- Bus, Spittelmarkt, Linien 248, 265, M48, Gehzeit: 1 min
- Bundesautobahn, A 100, Fahrzeit: 20 min
- Flughafen, Berlin Brandenburg, Fahrzeit: 35 min
Ihr Kontakt

Alexandra Teich
Ihr Kontakt
Marktinformationen
Mietmarkt
Mitte, Berlin
Gew. Ø-Miete
32 € / m²
siehe 177 passende MietobjekteErfahren Sie mehr* Durchschnittspreis auf Grundlage historischer Transaktionen.





















