Büros
ID B0012Aktualisiert
Büroimmobilie - Berlin, Tiergarten - B0012
Tiergarten, 10787, Berlin, Berlin
Provisionspflichtig: bei Anmietung 3 Netto-Monatsmieten zzgl. gesetzlicher Umsatzsteuer.** der Wert kann je nach Vertragslaufzeit variieren.
24 € / m²
- Fläche171 - 2.710 m²
- VerfügbarkeitSofort
- Objekt
- Ausstattung
- Lage und Verkehrsanbindung
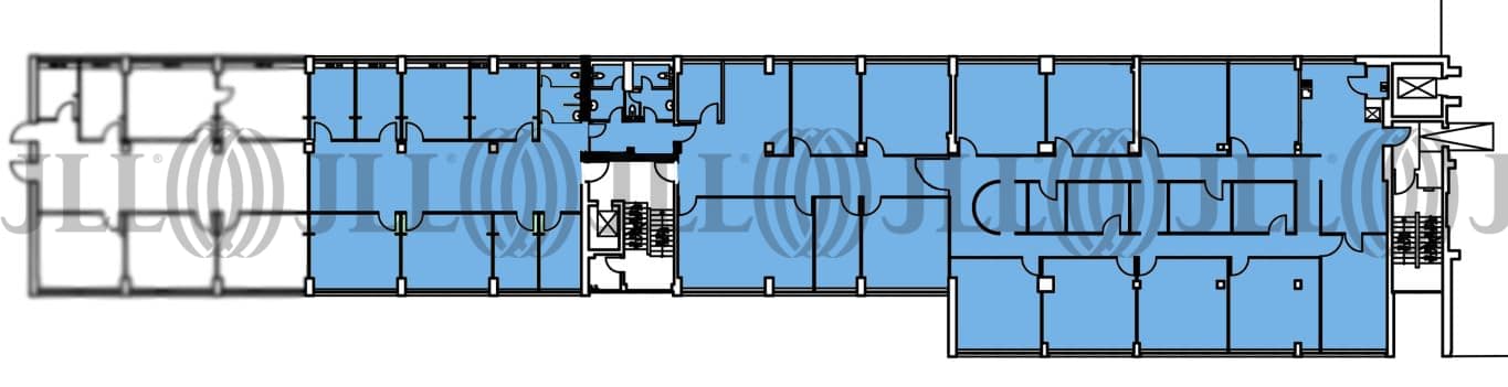
- Grundrisse
- Exposé herunterladen
- Ihr Kontakt
- Anfrage senden
Zertifizierungen
Energieausweis
Für diese Liegenschaft liegt ein Bedarfsausweis vom 15.10.2019 vom Eigentümer/Vermieter vor. Die wesentlichen Energieträger der Liegenschaft sind Heizwerk, fossil, Strom. Der Endenergiebedarf Strom beträgt 20.60 kWh/(m²*a). Der Endenergiebedarf Wärme beträgt 209.00 kWh/(m²*a).Verfügbare Fläche
Lage und Verkehrsanbindung
Das Objekt befindet sich in bester Innenstadt-Lage in fußläufiger Entfernung zum Wittenbergplatz. Der Kurfürstendamm mit seinen vielen Einkaufsmöglichkeiten und Restaurants befindet sich in der Nähe. Dienstleister des täglichen Bedarfs befinden sich in der Nähe.
- Flughafen, Berlin Brandenburg, Fahrzeit: 40 min
- Bundesautobahn, A 100, Fahrzeit: 15 min
- Bus, Lützowplatz; Linien 100, 106, 187, M29, N26, Gehzeit: 5 min
- U-Bahn, Wittenbergplatz; Linien U1, U2, Gehzeit: 10 min
- Hauptbahnhof, Berlin, Fahrzeit: 15 min
Ihr Kontakt

Alexandra Teich
Ihr Kontakt
Marktinformationen
Mietmarkt
Tiergarten, Berlin
siehe 1 passende MietobjekteErfahren Sie mehr
* Durchschnittspreis auf Grundlage historischer Transaktionen.






