Büros
ID B0010Provisionsfrei
Büroimmobilie - Berlin, Charlottenburg - B0010
Charlottenburg, 10789, Berlin, Berlin
27,50 € / m²
- Fläche167 - 425 m²
- VerfügbarkeitSofort
- Objekt
- Ausstattung
- Lage und Verkehrsanbindung
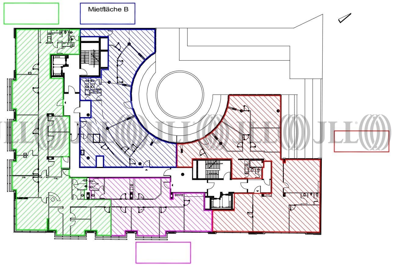
- Grundrisse
- Exposé herunterladen
- Ihr Kontakt
- Anfrage senden
Objekt
Der äußerst attraktive Neubau wird höchsten Nutzeranforderungen gerecht. Die Raumaufteilung kann nach Mieterwunsch erfolgen. Die Einzelhandelsflächen vom EG bis 2. OG sind an den Nike-Megastore vermietet.
Zertifizierungen
Energieausweis
Für diese Liegenschaft liegt ein Verbrauchsausweis vom 2015-06-08 vom Eigentümer/Vermieter vor. Der wesentliche Energieträger der Liegenschaft ist Fernwärme. Der Endenergieverbrauch Strom beträgt 94.00 kWh/(m²*a). Der Endenergieverbrauch Wärme beträgt 101.00 kWh/(m²*a).Verfügbare Fläche
Lage und Verkehrsanbindung
Das Objekt befindet sich in prominenter Ecklage zur Nürnberger Straße und liegt in einer der attraktivsten Lagen im Herzen Berlins. Einkaufsmöglichkeiten des täglichen Bedarfs und gastronomische Einrichtungen säumen das Umfeld. Dienstleister des täglichen Bedarfs befinden sich in der Nähe.
- Flughafen, Berlin Brandenburg, Fahrzeit: 25 min
- Bundesautobahn, A 100, Fahrzeit: 10 min
- Bus, Kurfürstendamm Buslinien M19, M29, M46, Gehzeit: 4 min
- U-Bahn, Kurfürstendamm, Linien U1, U9, Gehzeit: 4 min
- S-Bahn, Zoologischer Garten, Linien S3, S5, S7, S9, Gehzeit: 6 min
Ihr Kontakt

Alexandra Teich
Ihr Kontakt
Marktinformationen
Mietmarkt
Charlottenburg, Berlin
Gew. Ø-Miete
27,50 € / m²
siehe 99 passende MietobjekteErfahren Sie mehr* Durchschnittspreis auf Grundlage historischer Transaktionen.







