Büros
ID F2741Büroimmobilie - Ludwigshafen am Rhein, Ludwigshafen-Mundenheim - F2741
Ludwigshafen-Mundenheim, 67059, Ludwigshafen am Rhein, Rheinland-Pfalz
Provisionspflichtig: bei Anmietung 3 Netto-Monatsmieten zzgl. gesetzlicher Umsatzsteuer.** der Wert kann je nach Vertragslaufzeit variieren.
11,30 € / m²
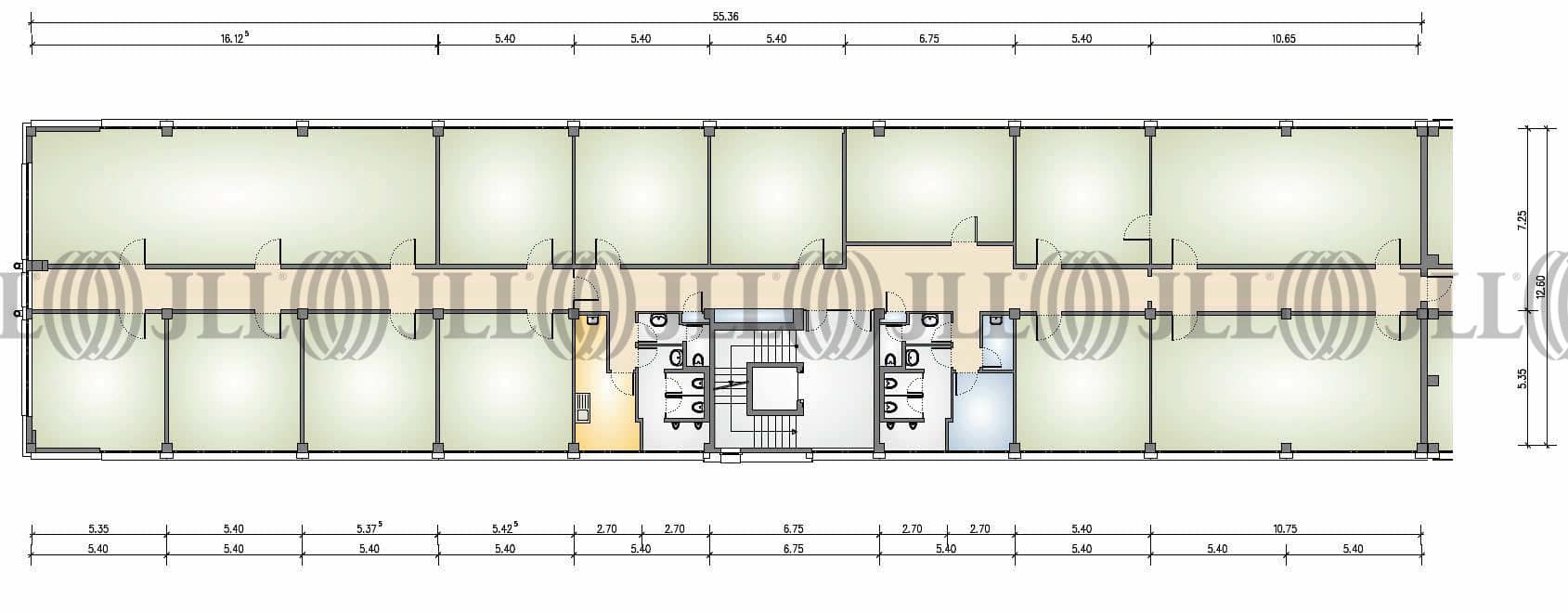
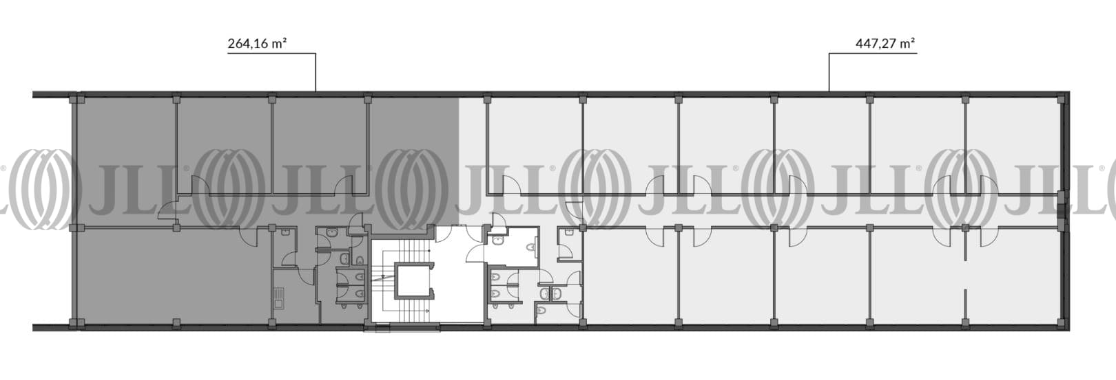
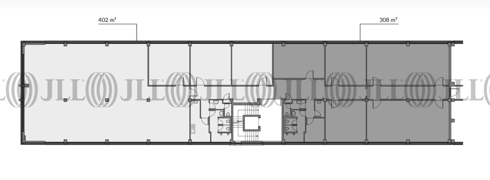
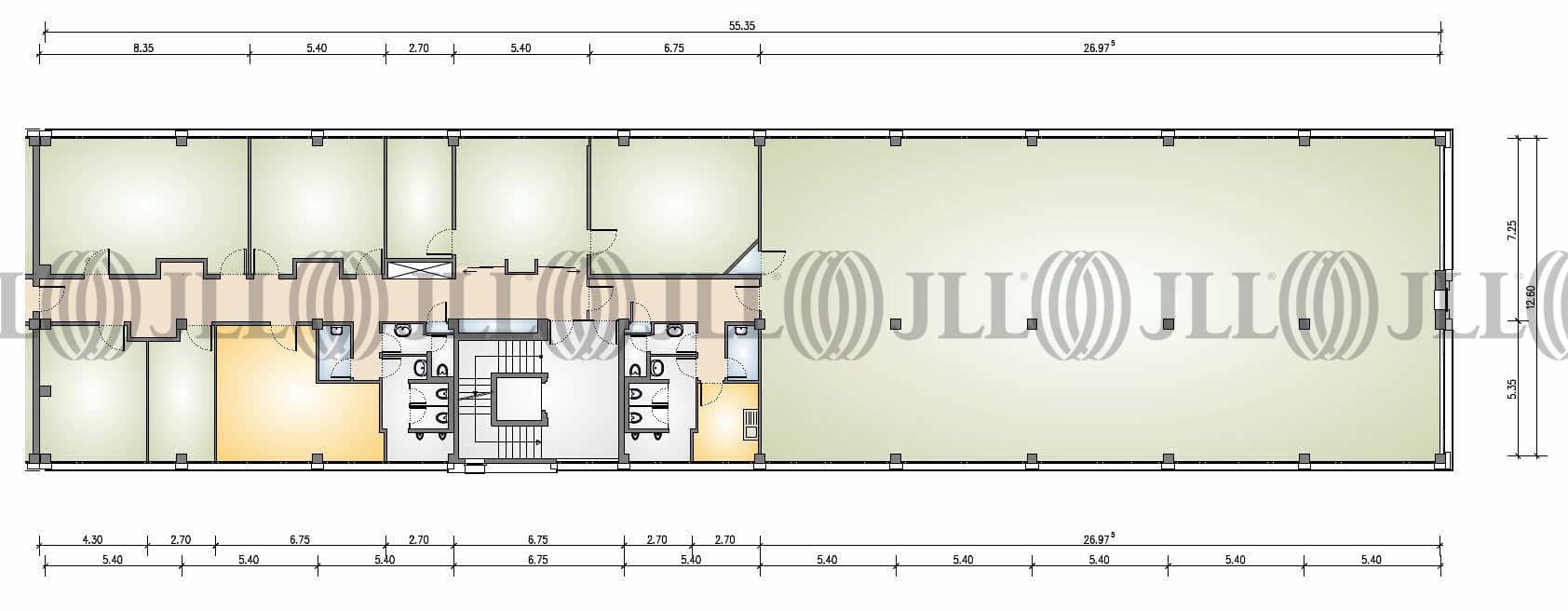
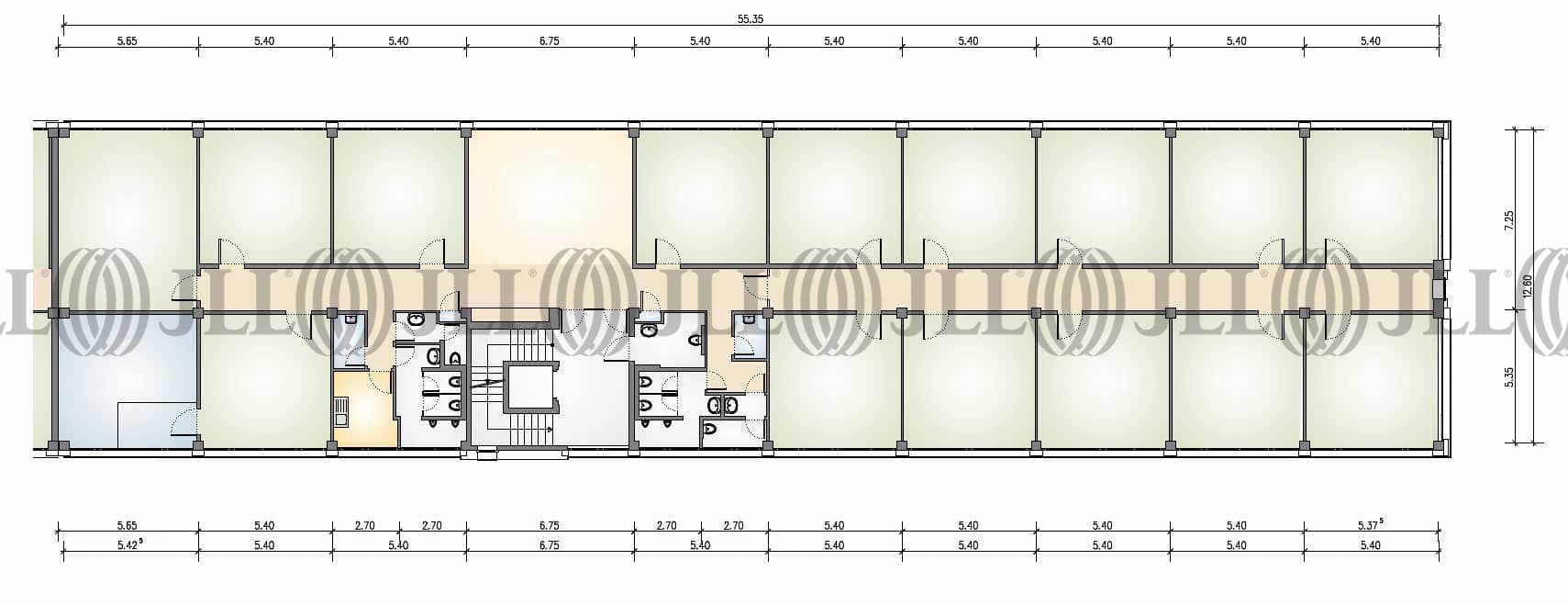
- Fläche257 - 1.853 m²
- VerfügbarkeitAuf Anfrage
- Objekt
- Ausstattung
- Lage und Verkehrsanbindung
- Grundrisse
- Exposé herunterladen
- Ihr Kontakt
- Anfrage senden
Objekt
Der Technologiepark Ludwigshafen liegt an der Technologiemeile und bietet innovativen, technologisch orientierten, mittelständischen Unternehmen aber auch Start-ups den idealen Standort von morgen!
Die künftigen Mieter können Einfluss auf die Gestaltung der Räumlichkeiten nehmen.
Nutzen Sie die Möglichkeit, eine bereits etablierte Anlaufstelle für Hochschulbesucher und Büronutzer zu übernehmen.
Die künftigen Mieter können Einfluss auf die Gestaltung der Räumlichkeiten nehmen.
Nutzen Sie die Möglichkeit, eine bereits etablierte Anlaufstelle für Hochschulbesucher und Büronutzer zu übernehmen.
Zertifizierungen
Energieausweis
Für diese Liegenschaft liegt ein Verbrauchsausweis vom 18.11.2013 vom Eigentümer/Vermieter vor. Die wesentlichen Energieträger der Liegenschaft sind Erdgas leicht, Erdgas schwer. Der Endenergieverbrauch Strom beträgt 57.90 kWh/(m²*a). Der Endenergieverbrauch Wärme beträgt 75.60 kWh/(m²*a).Verfügbare Fläche
Lage und Verkehrsanbindung
Ludwigshafen/ Technologiemeile: Der Teilmarkt Technologiemeile ist direkt am Ludwigshafener Hauptbahnhof gelegen und verfügt neben der hervorragenden Anbindung an die öffentlichen Verkehrsmittel auch über eine gute überregionale Anbindung durch die B 44, B37 und die A 650. In dem Gewerbegebiet sind in den letzten Jahren eine Reihe von hochmodernen Bürokomplexen entstanden, in denen sich Unternehmen wie Prego, BASF sowie das TechnologieZentrum Ludwigshafen und die Hochschule Ludwigshafen angesiedelt haben. Eine Tankstelle befindet sich in der Nähe. Dienstleister des täglichen Bedarfs befinden sich in der Nähe.
- Flughafen, Frankfurt am Main, Fahrzeit: 50 min
- Bundesautobahn, A 650, Fahrzeit: 4 min
- Bus, Bushaltestelle LU Hochschule Buslinien 75,76,78, Gehzeit: 4 min
Ihr Kontakt

Konstantinos Krikelis
Ihr Kontakt







