Büros
ID D2594Provisionsfrei
Büroimmobilie - Essen, Südostviertel - D2594
Südostviertel, 45138, Essen, Nordrhein-Westfalen
13,50 € / m²
- Fläche300 - 623 m²
- VerfügbarkeitAuf Anfrage
- Objekt
- Ausstattung
- Lage und Verkehrsanbindung
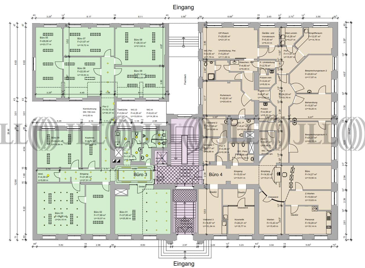
- Grundrisse
- Exposé herunterladen
- Ihr Kontakt
Objekt
Das altehrwürdige Gebäude überzeugt mit seiner charmanten und repräsentativen Altbauweise. Die sehr hellen und äußerst effizient geschnittenen Flächen geben dem Objekt eine einzigartige Kombination der Eigenschaften.
Verfügbare Fläche
Lage und Verkehrsanbindung
Die Büromarktzone Moltkeviertel erstreckt sich von der Kronprinzenstraße entlang der nördlichen Ruhrallee und wird im Süden durch den Verkehrsknotenpunkt Ruhrallee / Huttropstraße begrenzt. Das Moltkeviertel wird durch eine gehobene Wohnnutzung geprägt. Diverse Gebäude im Moltkeviertel sind denkmalgeschützt und somit werden große Bereiche durch eine Erhaltungssatzung geschützt. Das Krankenhaus Huyssens-Stift sowie das Elisabeth-Krankenhaus sind im Moltkeviertel beheimatet. Eine Tankstelle befindet sich in der Nähe. Dienstleister des täglichen Bedarfs befinden sich in der Nähe.
- Flughafen, Düsseldorf, Fahrzeit: 19 min
- Bundesautobahn, A 52, Fahrzeit: 3 min
- Bundesautobahn, A 40, Fahrzeit: 4 min
- Bus, Helbingstraße 154, 155, Gehzeit: 7 min
- Hauptbahnhof, Essen, Fahrzeit: 4 min
- Straßenbahn/Tram, Moltkestraße 101, 105, 106, Gehzeit: 7 min
Ihr Kontakt

Eva Fleige
Ihr Kontakt



