Büros
ID B2693Provisionsfrei
Aktualisiert
Büroimmobilie - Leipzig, Zentrum - B2693
Zentrum, 04109, Leipzig, Sachsen
18 € - 19,50 € / m²
- Fläche421 - 3.503 m²
- VerfügbarkeitAuf Anfrage
- Objekt
- Ausstattung
- Lage und Verkehrsanbindung
- Grundrisse
- Exposé herunterladen
- Ihr Kontakt
- Anfrage senden
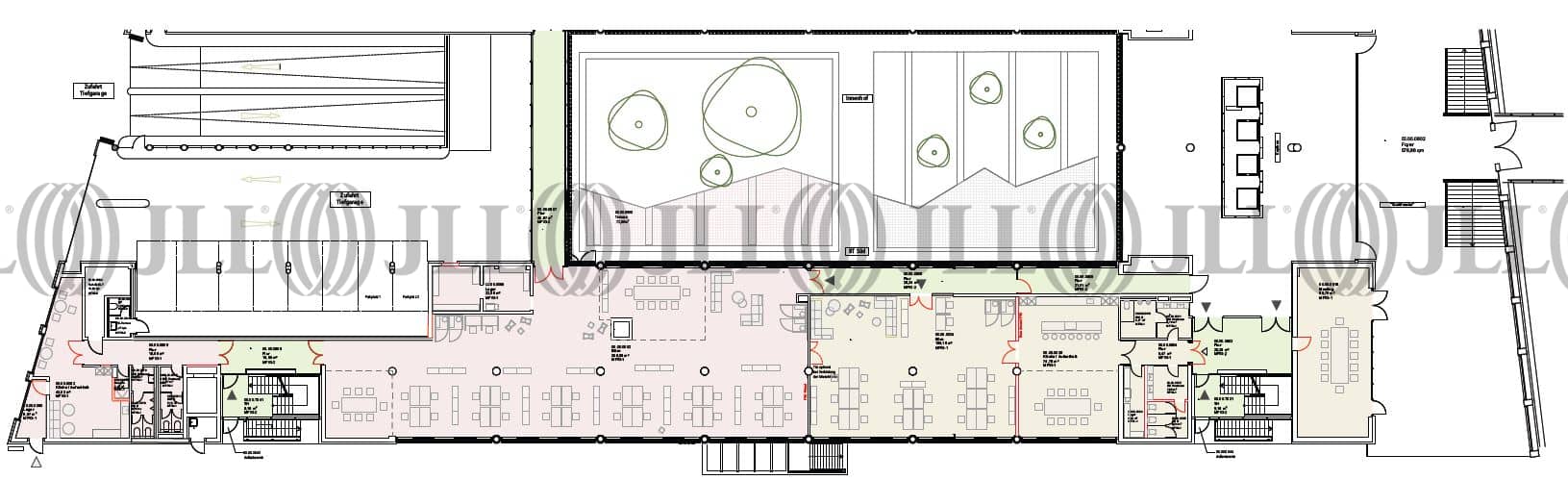
Objekt
Die repräsentative Liegenschaft befindet sich direkt am Innenstadtring und überzeugt durch beste Visibilität und markante Architektur. Im Erdgeschoss des südlichen Gebäudeteils stehen ca. 1.000 m² zur Verfügung. Die Flächen besitzen einen direkten Zugang zum begrünten Innenhof sowie zum Auditorium. Eine Nutzung durch den zukünftigen Mieter ist möglich. Durch eine Teilung der Mietfläche könnten separate Einheiten mit ca. 430 m² und ca. 570 m² Fläche entstehen. Für die mögliche Teilung der Fläche hat der Vermieter zwei Varianten erarbeitet.
Im Bauteil Nord stehen Ihnen aktuell rund 2.500 m² hochwertige Bürofläche zur Verfügung, die sich optimal über fünf Geschosse verteilen. Mit durchschnittlich ca. 500 m² pro Geschoss lassen sich effiziente und kommunikationsfördernde Bürolandschaften realisieren.
Die Anmietung von Stellplätzen ist in der anliegenden Tiefgarage möglich.
Der finale Mietpreis richtet sich nach der angestrebten Vertragslaufzeit sowie dem mieterspezifischen Ausbau. Einige der gezeigten Fotografien stellen repräsentative Referenzflächen innerhalb des Gebäudes dar.
Im Bauteil Nord stehen Ihnen aktuell rund 2.500 m² hochwertige Bürofläche zur Verfügung, die sich optimal über fünf Geschosse verteilen. Mit durchschnittlich ca. 500 m² pro Geschoss lassen sich effiziente und kommunikationsfördernde Bürolandschaften realisieren.
Die Anmietung von Stellplätzen ist in der anliegenden Tiefgarage möglich.
Der finale Mietpreis richtet sich nach der angestrebten Vertragslaufzeit sowie dem mieterspezifischen Ausbau. Einige der gezeigten Fotografien stellen repräsentative Referenzflächen innerhalb des Gebäudes dar.
Zertifizierungen
Energieausweis
Für diese Liegenschaft liegt ein Bedarfsausweis vom 01.01.1970 vom Eigentümer/Vermieter vor. Der wesentliche Energieträger der Liegenschaft ist Fernwärme. Der Endenergiebedarf Strom beträgt 19.90 kWh/(m²*a). Der Endenergiebedarf Wärme beträgt 134.20 kWh/(m²*a).Verfügbare Fläche
Lage und Verkehrsanbindung
Die Leipziger Innenstadt zeichnet sich durch eine kompakte City mit sehr attraktiven Handelsstrukturen und einem Mix aus aufwendig sanierten Handelshöfen, Passagen und stilvollen Neubauten aus. Der Dittrichring begrenzt die Leipziger Innenstadt im Westen. Hier befinden sich die eindrucksvollsten Prachtbauten der Gründerzeit, Museen und eine kleine Galerien. Zudem gelangt man über die „Kleine Fleischergasse“ und das „Barfußgässchen“ in lediglich 3 Gehminuten zum historischen Marktplatz. Hier befindet sich die unterirdische Haltestelle der S-Bahn, die seit Ende 2013 die Leipziger Innenstadt mit ihrem mitteldeutschen Umfeld verbindet. Halle/Saale, Zwickau, Dessau und Hoyerswerda sind nunmehr umstandslos zu erreichen.
- Hauptbahnhof, Leipzig, Gehzeit: 9 min
- Hauptbahnhof, Leipzig, Fahrzeit: 5 min
- S-Bahn, Leipzig-Markt, Gehzeit: 3 min
- Bundesautobahn, A 14, Fahrzeit: 15 min
- Bundesstraße, A 38, Fahrzeit: 20 min
- Flughafen, Leipzig / Halle , Fahrzeit: 25 min
Ihr Kontakt

Kay Förster
Ihr Kontakt
Marktinformationen
Mietmarkt
Zentrum, Leipzig
siehe 50 passende MietobjekteErfahren Sie mehr
* Durchschnittspreis auf Grundlage historischer Transaktionen.








