Büros
ID H0494Provisionsfrei
Büroimmobilie - Hamburg, Hamburg-Altstadt - H0494
Hamburg-Altstadt, 20459, Hamburg, Hamburg
Kontaktieren Sie uns für den Preis
- Fläche152 - 3.134 m²
- VerfügbarkeitIV quartal 2026
- Objekt
- Ausstattung
- Lage und Verkehrsanbindung
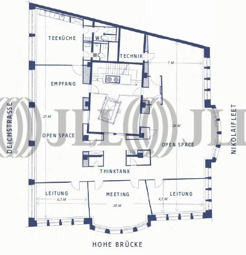
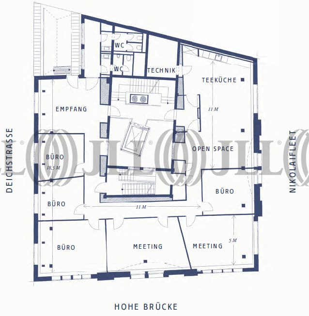
- Grundrisse
- Exposé herunterladen
- Ihr Kontakt
Objekt
Dieses im Jahr 1890 errichtete, siebenstöckige Gebäude besticht durch seine kunstvoll gestalteten Fassadenelemente und großzügigen Fensterflächen, die dem Objekt ein elegantes und lichtdurchflutetes Ambiente verleihen. Dank seiner markanten Ecklage bieten gleich drei der Gebäudeseiten einen atemberaubenden Blick auf den Hafen sowie eine optimale Belichtung, die zu jeder Tageszeit für ein helles und einladendes Raumgefühl sorgt.
Zertifizierungen
Energieausweis
Für diese Liegenschaft liegt ein Verbrauchsausweis vom 2014-06-04 vom Eigentümer/Vermieter vor. Der wesentliche Energieträger der Liegenschaft ist Fernwärme. Der Endenergieverbrauch Strom beträgt 9.20 kWh/(m²*a). Der Endenergieverbrauch Wärme beträgt 113.10 kWh/(m²*a).Verfügbare Fläche
Lage und Verkehrsanbindung
Das Objekt Hohe Brücke 1 befindet sich in einer der attraktivsten Innenstadtlagen Hamburgs, direkt im Herzen der historischen Altstadt zwischen Rathaus und Speicherstadt. Die Lage zeichnet sich durch ihre unmittelbare Nähe zu zentralen Geschäfts- und Verwaltungsstandorten sowie wichtigen kulturellen und touristischen Attraktionen aus. Die Immobilie profitiert von der direkten Anbindung an das öffentliche Verkehrsnetz mit den U-Bahn-Stationen Rathaus und Rödingsmarkt in fußläufiger Entfernung, die eine optimale Erreichbarkeit aus allen Stadtteilen Hamburgs gewährleisten. Die Nähe zum Hauptbahnhof und die gute Anbindung an das Autobahnnetz über die A1 und A7 schaffen zusätzliche Vorteile für überregionale Verbindungen. Das direkte Umfeld ist geprägt von hochwertiger Einzelhandels-, Büro- und Dienstleistungsnutzung. Die Nähe zur Mönckebergstraße als einer der wichtigsten Einkaufsstraßen Norddeutschlands sowie zu den historischen Kontorhäusern verleiht dem Standort besonderen Charakter und wirtschaftliche Stabilität. Die unmittelbare Nachbarschaft zur UNESCO-Welterbestätte Speicherstadt und zur modernen HafenCity unterstreicht die Dynamik und Zukunftsfähigkeit des Standorts. Die Lage bietet hervorragende Voraussetzungen für verschiedene Nutzungskonzepte, von repräsentativen Büroflächen über hochwertige Einzelhandelsnutzung bis hin zu gastronomierelevanten Konzepten. Die hohe Passantenfrequenz durch Berufstätige, Touristen und Einzelhandelskunden macht den Standort besonders attraktiv für kundenorientierte Nutzungen.
- Flughafen, Hamburg, Fahrzeit: 29 min
- Bundesautobahn, A 1, Fahrzeit: 10 min
- Bundesautobahn, A 7, Fahrzeit: 17 min
- Bundesautobahn, A 24, Fahrzeit: 14 min
- Bus, Bushaltestelle U Rödingsmarkt Buslinien div. Buslinien, Gehzeit: 4 min
Ihr Kontakt

Nikolina Malek
Ihr Kontakt














